View gallery
140329 020 sakaki dwg [Converted]
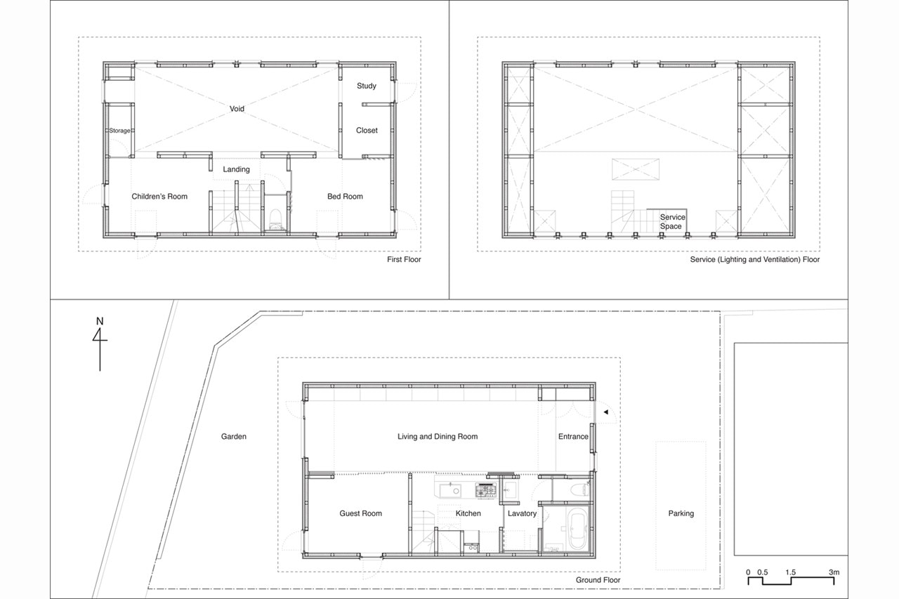
Atelier Moto Katono, S House, Toyohira-ku, Sapporo, Hokkaido, Japan
S House, Toyohira-ku, Sapporo, Hokkaido, Japan
Program: single-family house
Architects: Atelier Moto Katono
Collaborator: Mari Shimazaki
External Collaborator: Katono Architects Co.,Ltd.
Client: Private
Constructor: Sekiwa Kensetsu Sapporo
Structure Engineer: SATO mokuzai
Service Engineer: SEIWA, ECOTEC Co.,Ltd.
Furniture Designer: Mari Shimazaki (Dining table)
Area: 59 sqm
Completion: 2013
