Il museo e il centro ricerche cercano di trovare un equilibrio tra azioni semplici per preservare la biodiversità dell’area, e altre più impegnative, incidendo positivamente sulla biodiversità naturale.
Il progetto non è quindi né un parco a tema né un giardino decorativo. È un intervento site-specific ispirato alla biodiversità locale, alla topografia naturale e ad altre caratteristiche proprie di Beautour.
L’itinerario di visita è pensato in questa logica, conducendo i visitatori nei campi e nella valle dove la natura incontra il passato storico e i giardini di nuova progettazione.
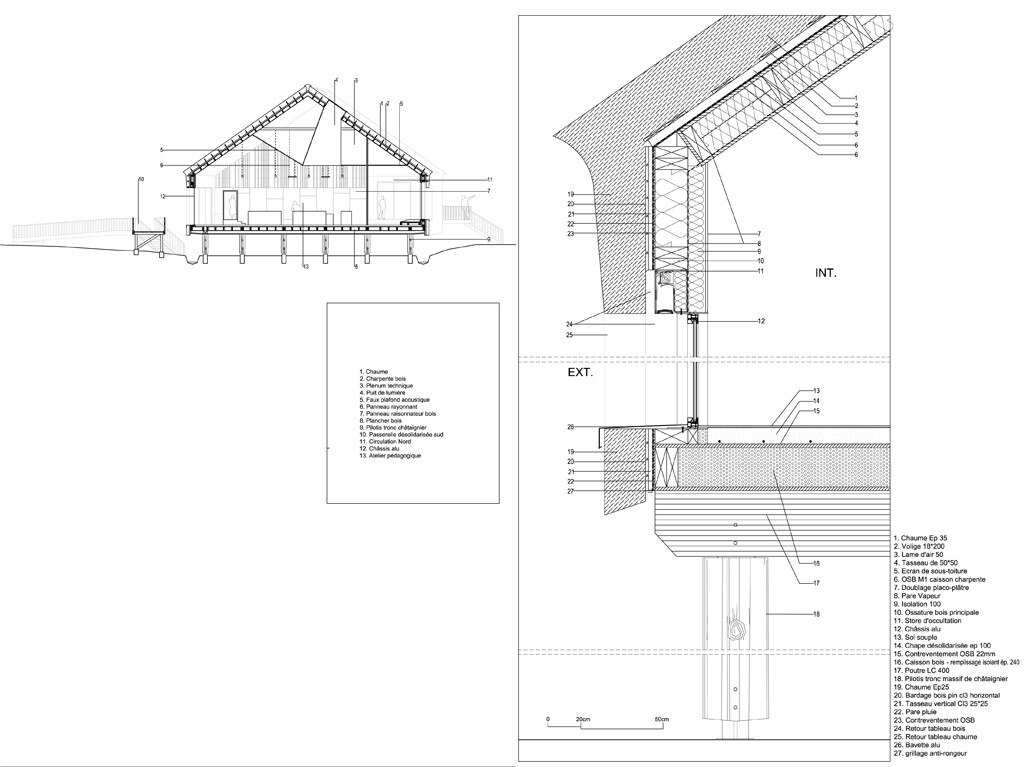
In un caratteristico paesaggio verde, il progetto per il Beautour Museum & Biodiversity Research Center assume forte identità reinterpretando una tecnica costruttiva tradizionale in modo contemporaneo e innovativo, rivestendo di paglia tutte le pareti e il tetto dell’edificio.
La forma compatta, così come quella della residenza di Durand, si sviluppa in maniera organica, abbracciando il palazzo e inserendosi nel sito in maniera diffusa, senza rovesciare l’ordine naturale. I tronchi di castagno grezzi confondono l’immagine complessiva del progetto, mimetizzandolo.
L’edificio, come fosse un ramo poggiato a terra, è un “pezzo di paesaggio costruito”, una “nuova geografia” che completa la scenografia naturale.
La scelta di sopraelevarlo rispetto al terreno consente di mantenere la biodiversità e minimizza l’impatto delle fondazioni.
Accanto al volume principale, uno spazio tecnico dipinto di nero ospita gli spogliatoi e la caldaia a legna. Accanto all’ingresso principale è invece collocata una serra pedagogica.
Galleria
S:\PROJET EN COURS\LAROCHESURYON\COMMUNICATION\PLAN+COUPES_simplifies\Archives\plan+coupes Model (1)
Beautour Museum & Biodiversity Research Center, La Roche-sur-Yon, Francia
Tipolgia: museo e centro ricerche
Architetti: Guinée*Potin Architectes
Progetto del paesaggio: Guillaume Sevin Paysages
Graphic design: Warmgrey
Allestimento museografico: Stéphanie Vincent
Ingegneria: Isateg
Scenografie: block architects
Area: 2.057 m q
Completamento: 2013
