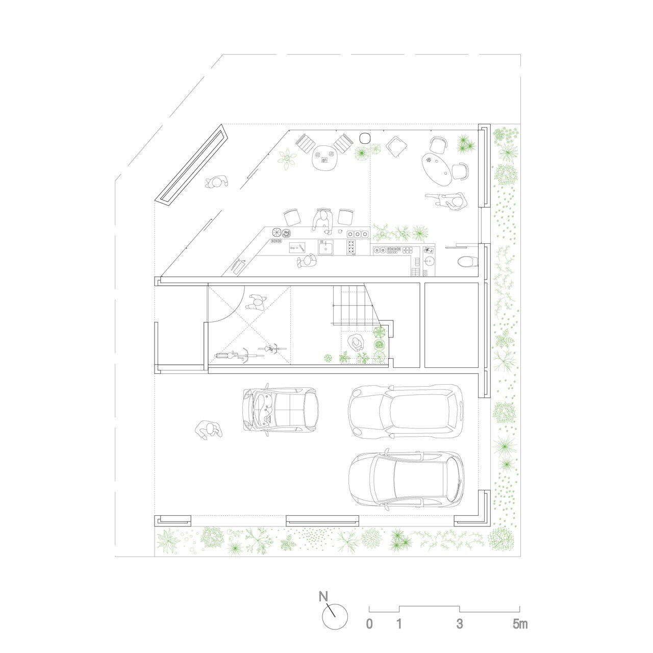
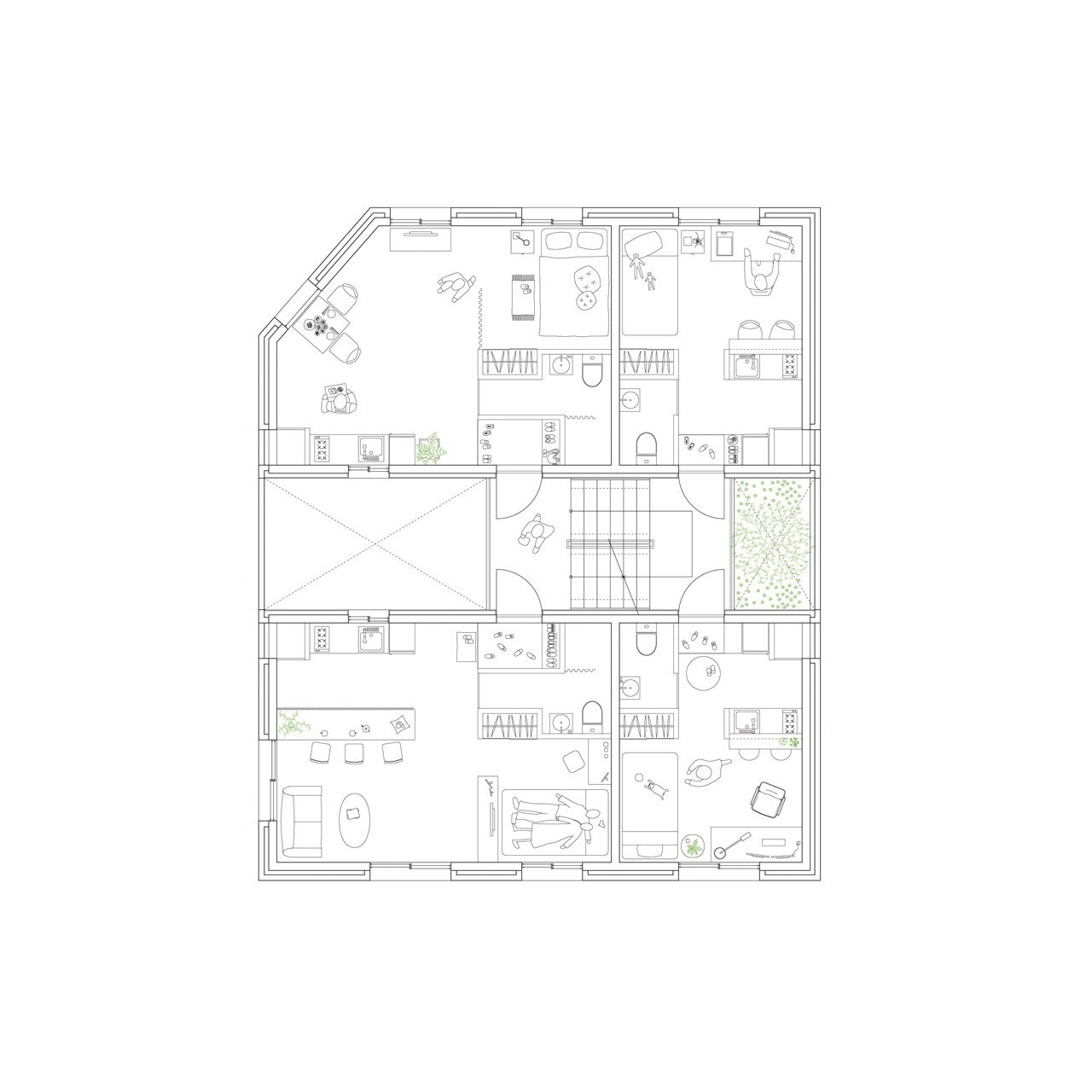
Beyond the Screen, Seoul, South Korea
Progetto: OBBA (Sojung Lee & Sangjoon Kwak)
Strutture: TEO Structure
Impianti: Wonwoo Engineering
Impresa: YIINSIGAK; strutture RC; facciata in mattoni Dryvit
Area: 427.24 m2
Area costruita: 128.08 m2
Completamento: 2013
