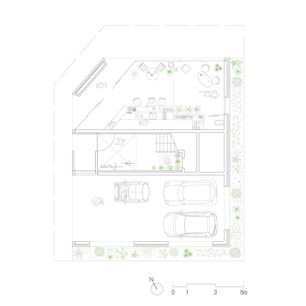
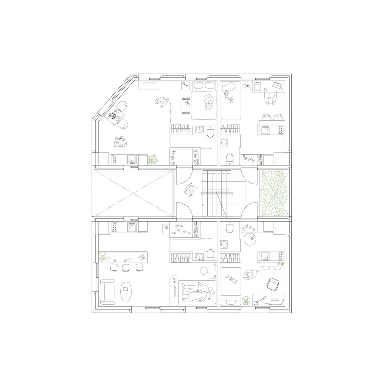
Beyond the Screen, Seoul, South Korea
Project: OBBA (Sojung Lee & Sangjoon Kwak)
Structural Engineer: TEO Structure
MEP Engineer: Wonwoo Engineering
Building contractor: YIINSIGAK; Structure RC; Finish Brick, Dryvit
Site Area: 427.24 m2
Site Coverage Area: 128.08 m2
Completion: 2013
