K2-Design: Flat 40

Con una serie di espedienti architettonici, lo studio giapponese ha realizzato una residenza unifamiliare dotata di un notevole livello di privacy e di spazi naturalmente attraversati da aria e luce.

Lo studio di architettura giapponese K2-Design ha appena completato una residenza per una famiglia di 4 persone, ad Imabari, nella prefettura di Ehime, in Giappone. Il progetto è situato nel centro della città, e a sud è affiancato da un alto complesso di appartamenti. Sviluppandosi longitudinalmente, il nuovo edificio si relaziona al contesto cercando di privilegiare un senso di privacy, insieme a una naturale illuminazione e ventilazione. "Per soddisfare queste esigenze", spiegano gli architetti, "abbiamo previsto sul versante meridionale un muro in cemento lungo 40 metri ". "La struttura adottata è quella dell'ukikabe, uno schermo galleggiante, sospeso sopra il terreno a una distanza di 1,5 metri dalla residenza".

L'ukikabe risolve una serie di questioni, ostacolando con successo la vista da ogni piano del palazzo attiguo, ma permettendo dall'interno della casa di avere una visuale completa del livello della strada. Inoltre garantisce l'accesso di luce naturale, pur preservando un certo livello di intimità. Esternamente il solido muro bianco, sospeso da terra, lascia intravedere i fasci di luce provenienti dall'interno della casa.

K2-Design, Flat 40
K2-Design, Flat 40, Imabari, Prefettura di Ehime, Giappone 2012
Lo spazio interno, reso uniforme da un soffitto di legno, è caratterizzato da una serie di pareti ribassate che consentono una visione unitaria dello spazio. "Da qualsiasi punto all'interno, si scorgono le cime degli alberi e il cielo", continuano gli architetti. "Un corridoio, che si sviluppa da est a ovest, è il principale elemento distributivo della casa e attraversando il patio favorisce la circolazione di aria, rendendo questo interno diretta continuazione dell'esterno".
K2-Design, Flat 40
K2-Design, Flat 40, Imabari, Prefettura di Ehime, Giappone 2012

K2-Design: Flat 40
Località:
Imabari, Prefettura di Ehime, Giappone
Programma: Casa unifamiliare
Completamento: 2012
K2-Design, Flat 40
K2-Design, Flat 40, Imabari, Prefettura di Ehime, Giappone 2012
K2-Design, Flat 40
K2-Design, Flat 40, Imabari, Prefettura di Ehime, Giappone 2012
K2-Design, Flat 40
K2-Design, Flat 40, Imabari, Prefettura di Ehime, Giappone 2012
K2-Design, Flat 40
K2-Design, Flat 40, Imabari, Prefettura di Ehime, Giappone 2012
K2-Design, Flat 40
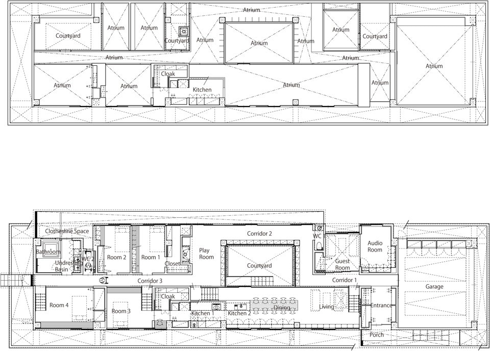
K2-Design, Flat 40. Pianta

Ultimi articoli di Architettura

Altri articoli di Domus

China Germany India Mexico, Central America and Caribbean Sri Lanka Korea icon-camera close icon-comments icon-down-sm icon-download icon-facebook icon-heart icon-heart icon-next-sm icon-next icon-pinterest icon-play icon-plus icon-prev-sm icon-prev Search icon-twitter icon-views icon-instagram