Studio di progettazione: SET arq
Nome del progetto: Casa dos Muros
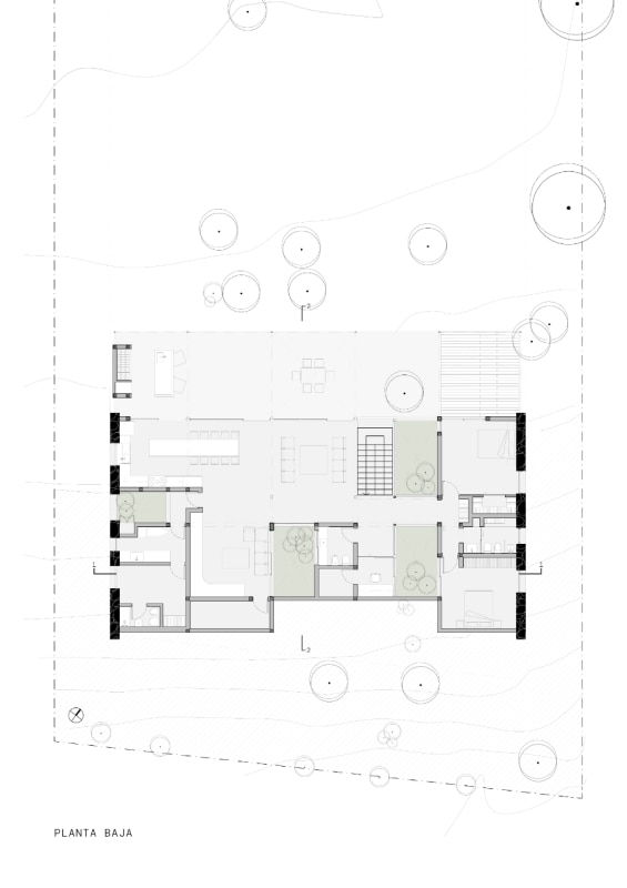
Luogo: Córdoba, Argentina
Dimensioni: 570 mq
In Argentina, SET arq firma un’abitazione che assume i vincoli esistenti come principi ispiratori di progetto. La casa su due piani, adagiata su un declivio in lieve pendenza ed accessibile dalla quota superiore della strada a sud-est, deve il suo impianto planivolumetrico ai due muri laterali in pietra che marcano i confini nord-est e sud-ovest del lotto e ad un albero di algarrobo che la costruzione ingloba come fulcro naturale della composizione. Attorno a questo, lo spazio si snoda in una sequenza di ambienti ariosi e permeabili, scanditi da partizioni minime e flessibili, e si erode in una trama di patii alberati che intercettano luce e ventilazione naturali, amplificando la continuità visiva con l’esterno. Una palette di materiali naturali rigorosamente a vista (pietra, cemento e metallo), in dialogo con le ampie superfici vetrate della facciata esposta a nord-ovest, denuncia la ricerca di un equilibrio sottile tra rigore costruttivo e leggerezza figurativa.
