Studio di progettazione: C.F. Møller Architects
Nome del progetto: WoodHub
Luogo: Odense, Danimarca
Dimensioni: 36.500 mq
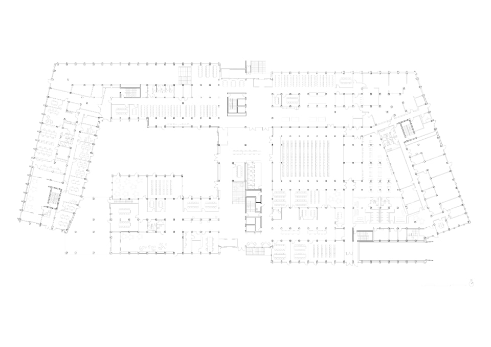
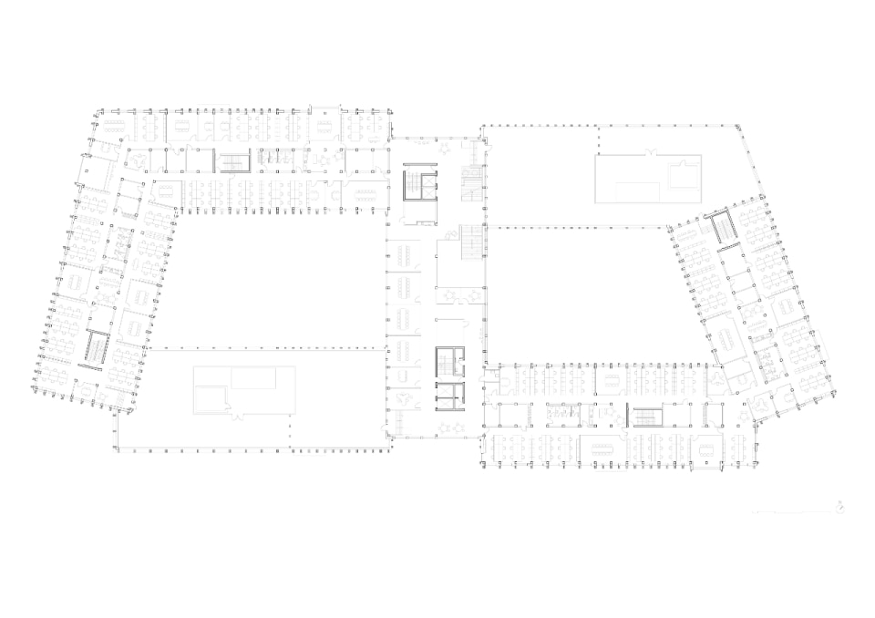
Nel cuore della Danimarca, sull'isola di Fiona, lo studio C.F. Møller Architects firma un progetto pilota che segna un passaggio decisivo nella riflessione sull’edilizia sostenibile a scala urbana, confermando il proprio impegno verso la transizione ecologica. WoodHub è il più grande edificio per uffici della Danimarca con struttura in legno massello, tecnologia che consente una drastica riduzione delle emissioni di carbonio a paragone di tecnologie convenzionali, oltre ad elevate prestazioni tecniche. L’impianto misurato e funzionale è composto da due corpi di uffici sfalsati a forma di C, con piani da tre a sei, raccordati al centro da un blocco di sette piani. Patii e terrazze a verde punteggiano il progetto, con i fronti rivestiti in alluminio riciclato che richiamano cromaticamente gli edifici in mattoni circostanti. Tutto esprime l’understatement tipico dello studio: chiarezza compositiva e semplicità formale, senza rinunciare a calore materico e qualità dello spazio.
