L'appartamento Louis M. di Philippe Rahm s'inscrive nel rinnovamento dell'architettura e della sua metodologia, che vengono incrociate con la scienza. Rahm sostiene che i rapporti tra l'una e l'altra non sono collocabili in una dinamica a senso unico, che parte dalla scienza per arricchire l'architettura, ma che tra esse si sono realizzati nuovi circuiti di scambio, dove non sono più le narrazioni e i racconti postmoderni a dare l'intonazione all'architettura, bensì la scienza e gli ambiti della conoscenza. Essi danno forma alla realizzazione di una nuova geografia della domesticità e dell'architettura. Nell'esplorazione di questo interno ci si potrebbe anche chiedere se i protocolli e i modelli scientifici adottati da Rahm per dare vita a un nuovo lessico architettonico non possano essere, a loro volta, oggetto di trasformazione.
Nel cuore del quartiere delle Confluences di Lione, a pochi passi dalla stazione di Perrache, un giovane medico ha affidato l'ideazione del suo appartamento da single all'architetto svizzero.
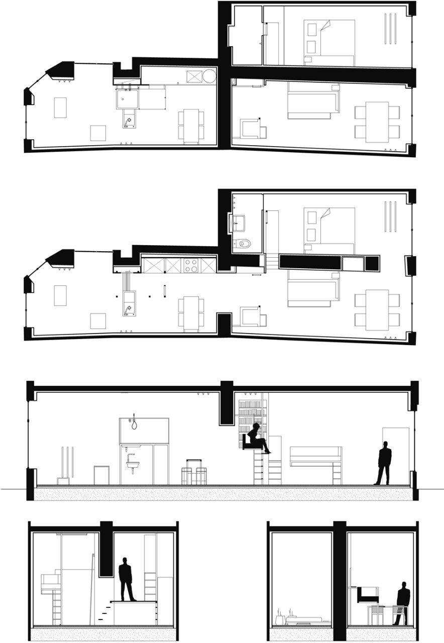
L'alloggio di 60 m2, con un'altezza del soffitto di quasi 4 metri, dà a Rahm l'occasione di realizzare uno spazio organizzato sul principio della convezione. L'appartamento concilia le qualità delle abitazioni ottocentesche — nelle quali gli spazi erano concepiti in rapporto all'uso, e la definizione degli ambienti così costituiti favoriva la conservazione del calore senza troppe perdite — con la potenza della celebre pianta libera di Le Corbusier.
Non riuscendo a scegliere di abbandonare questa soluzione per tornare alla distribuzione spaziale dei secoli precedenti, l'architetto si pone al centro di un paradosso e non intende rinunciare né ai vantaggi ecologici né a quelli della modernità. L'appartamento Louis M. risolve, quindi, razionalmente questa quadratura del cerchio: cerca di conciliare i benefici della pianta libera con il necessario risparmio energetico. Secondo un modello di climatizzazione conforme alle raccomandazioni, e prefigurando le condizioni fisiologiche all'interno dell'appartamento intorno a quattro parametri contrapposti — l'umido, il secco, il caldo e il freddo —, Rahm ha calcolato la posizione degli impianti e dell'arredamento.
L'appartamento Louis M. fa intuire un possibile influsso, più diffuso e meno identificabile, dell'immaginario elaborato nella cerchia dei laboratori di ricerca e del suo impatto sulla nostra vita quotidiana
Architetti: Philippe Rahm architectes
Team: Renaud Pinet, Mathieu Bujnowskyj, Marina Huguet i Blasi
Supervisione: André Souchko
Cliente: Louis Malachane
Superficie totale: 60 mq
Costo: 60,000 euro
Fase progettuale: 1/2011 — 6/2011
Periodo di costruzione: 9/2011—1/2012
