Nel 2002, il Comune di Brescia, ha bandito un appalto-concorso per l'assegnazione delle aree edificabili ricomprese nel Piano per l'Edilizia Economico Popolare (PEEP 2000) in località San Polo, nella zona orientale del comune e in continuità con il quartiere di San Polo, progettato da Leonardo Benevolo a partire dal 1972 e realizzato nel corso degli anni '80 e '90. In sostanza, il cosiddetto "Sanpolino" costituisce l'ultimo episodio, in ordine cronologico, dell'intervento pubblico in ambito residenziale operato dal comune di Brescia. L'area di concorso, definita da un masterplan redatto dal Comune, prevedeva la definizione di tre comparti, per 800 alloggi circa. I soggetti partecipanti (consorzi di imprese) avevano, da bando, l'obbligo di costituire gruppi di progettazione pluridisciplinari per la redazione dei progetti preliminari. Conclusa la fase concorsuale, tra il 2004 e il 2007 sono stati realizzati i tre comparti, ciascuno da diversi operatori e diversi progettisti.
L'edificio
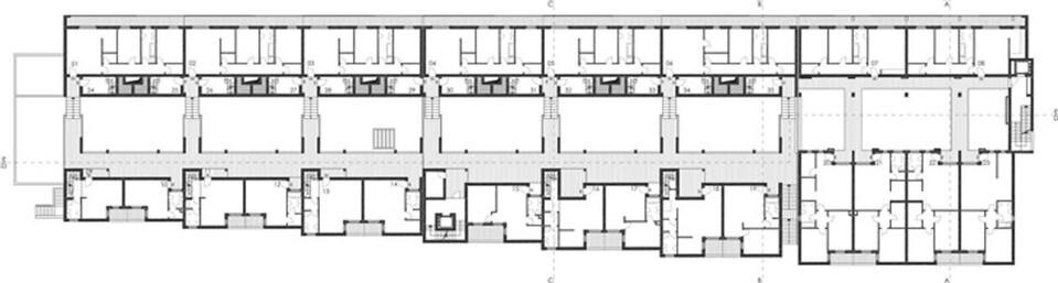
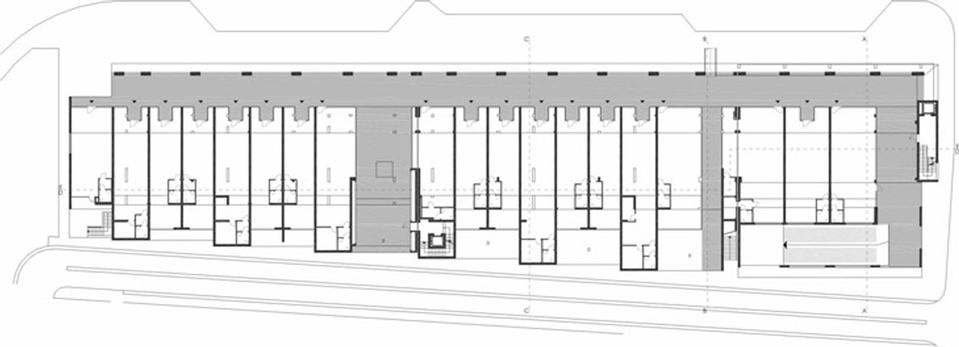
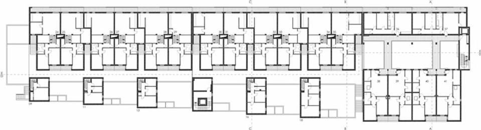
Il fronte urbano dell'edificio è stato pensato come un manufatto a doppia natura, legato alla sua specificità insediativa: per confrontarsi con gli spazi dilatati del "mall" e con la scala più minuta del tessuto retrostante di case a schiera. Oltretutto, in virtù della presenza di attività terziarie e commerciali inserite al piano terra e della sua collocazione tra il resto del comparto e gli spazi pubblici principali del quartiere con la fermata della metropolitana, l'edificio diviene il recapito dei percorsi longitudinali di connessione. Questa considerazione spiega perché sia stata garantita la massima permeabilità al piano terra. Si è perciò immaginato un edificio a piastra sollevata da terra e che occupa l'intera superficie del lotto, al di sotto della quale si collocano i volumi vetrati delle unità commerciali anticipate da un porticato, mentre ai livelli superiori si articolano gli alloggi. Questi ultimi, simplex e duplex, si dispongono a formare un fronte compatto e lineare con schermatura prospiciente il mall ed un fronte frammentato con alternanza di pieni e di vuoti dalla parte delle case su lotto. Al quarto livello, posto all'angolo SE dell'edificio, un volume aggettante con accessi autonomi ospita quattro unità abitative.
Lo schermo
In ottemperanza a quanto richiesto dal bando è stato realizzato per il fronte Nord-Est in affaccio sul mall una schermatura costituita da pannelli frangisole in legno, in grado di garantire una complessità compositiva del fronte principale. Il risultato finale si configura come una sorta di patchwork su base fissa (il frangisole).
L'assortimento tipologico
Tipo A: Alloggi duplex, trilocali e quadrilocali con accesso dal percorso sopraelevato pedonale, zona notte al piano di ingresso e zona giorno al piano superiore, con doppia altezza sull'ingresso ed in diretto contatto con la terrazza pertinenziale individuata in copertura; l'appartamento risulta dunque affacciato sul mall e sul tappeto di case a schiera interne al comparto.
Tipo B: Alloggi simplex trilocali affacciati sul mall, con balcone esterno parzialmente protetto dallo schermo.
Tipo C: Alloggi simplex trilocali posti sull'angolo SO dell'edificio, a configurare un blocco compatto che permette il "rigiro" dell'edificio ed introduce all'enfilade degli edifici "B".
Tipo D: Alloggi simplex bilocali e duplex trilocali che formano il fronte frammentato che affaccia sull'interno del comparto e che ha il compito di "dialogare" con l'articolazione volumetrica minuta e complessa delle case su lotto.
Edificio plurifamiliare, residenziale e commerciale
Comparto 21, Lotto 47, Edificio D, Brescia
Design: Mario Mento + Umberto Baratto architetti
Client: Imprese assegnatarie F.lli Garatti e Sistedim 97 Brescia
Concorso appalto: 2002
Realizzazione: 2004 – 2007
Costo: euro 6.300.000
S.L.P. complessiva: mq. 6035,26
Residenziale: mq. 4095,34 per 45 alloggi
Commerciale: mq. 1939,92
Progetto strutture e impianti: Tesis s.r.l., Brescia
