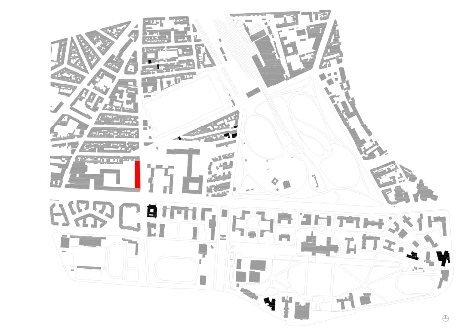
Chris Marker student residence in Paris - the largest in the French capital - designed by Éric Lapierre Experience (ÉLEx), was completed in 2017. The building is recounted by Lapierre in 1048 Domus, with three other Parisian residences designed in recent years. In the dialogue with Christ&Gantenbein, Muoto, and Barrault Pressacco, Lapierre states that the intention was to “communicate the domestic monumentality of a community of 400 people through an architectural expression on the level of this large group”.
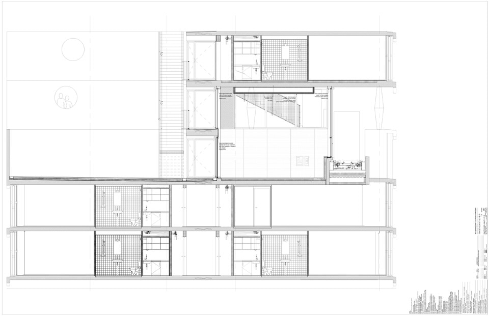
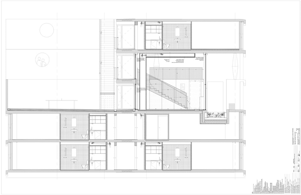
In addition to the residence, the building’s program also includes a car park and bus repair shop for eight public transport lines in Paris. Two functions whose difficult coexistence is solved in the diagonal crosses the main facades, along which the collective spaces are distributed. This shift from the natural location of these spaces from the ground floor to the upper floors makes it possible to insert the transport program.
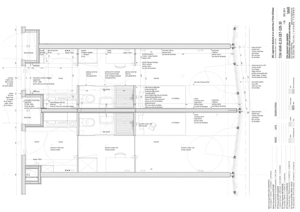
The main facade also shows the rooms’ distribution in the complex: the expressive play derives from the plan, dominated by a zizgazant line shown in the facade in the form of triangular concrete elements made in situ. This element is key in the poetics of Experience: it is from local fire regulations that these forms of expression derive, an elevation of an ordinary, almost banal element.
Lapierre does not fail, even in this case, to mix high culture and pop culture. In fact, it is from the 1962 science fiction short film La jetée by Chris Marker – the French director who gives his name to the residence itself – that the text guiding the students going up and down the building’s diagonal comes. More than a film, it is a photo novel, fragments put together by a narrative, by a voice-over, as are the different building programs.
- Progetto:
- Chris Marker student residence
- Luogo:
- Parigi, Francia
- Architetto:
- Éric Lapierre Experience
- Strutture:
- Batiserf
- Ingegneria dei fluidi e meccanica:
- Inex
- Acustica:
- Peutz
- Estimo:
- Forgue
- Cliente:
- Logis-Transport
- Certificazione energetica:
- H&E – THPE (Habitat & Environnement – Très Haute Performance Énergétique)
- Area:
- 9.655 mq
- Completamento:
- 2017
