Brandlhuber+ Emde and Burlon/Muck Petzet Architekten reimagined the terraced house typology in their construction of a stepped concrete residential building in Berlin.
At each level, the building’s volume retracts five metres to create large open terraces connected by long staircases. The steps in the rear facade have a negative form, generating a covered area at ground level.
View gallery
Terrassenhaus Berlin (2014-2018)
Designed by Brandlhuber + Emde, Burlon / Muck Petzet Architekten
Photo Erica Overmeer
Terrassenhaus Berlin (2014-2018)
Designed by Brandlhuber + Emde, Burlon / Muck Petzet Architekten
Photo Erica Overmeer
Terrassenhaus Berlin (2014-2018)
Designed by Brandlhuber + Emde, Burlon / Muck Petzet Architekten
Photo Erica Overmeer
Terrassenhaus Berlin (2014-2018)
Designed by Brandlhuber + Emde, Burlon / Muck Petzet Architekten
Photo Erica Overmeer
Terrassenhaus Berlin (2014-2018)
Designed by Brandlhuber + Emde, Burlon / Muck Petzet Architekten
Photo Erica Overmeer
Terrassenhaus Berlin (2014-2018)
Designed by Brandlhuber + Emde, Burlon / Muck Petzet Architekten
Photo Erica Overmeer
Terrassenhaus Berlin (2014-2018)
Designed by Brandlhuber + Emde, Burlon / Muck Petzet Architekten
Cross section
Terrassenhaus Berlin (2014-2018)
Designed by Brandlhuber + Emde, Burlon / Muck Petzet Architekten
Longitudinal section
Terrassenhaus Berlin (2014-2018)
Designed by Brandlhuber + Emde, Burlon / Muck Petzet Architekten
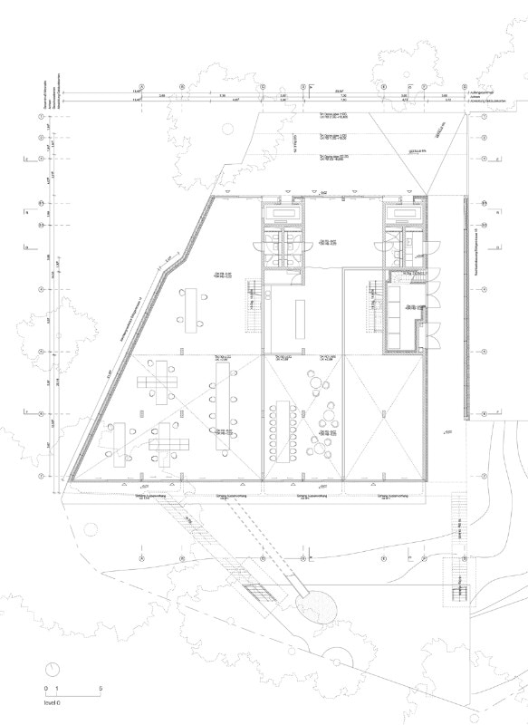
Ground floor plan
Terrassenhaus Berlin (2014-2018)
Designed by Brandlhuber + Emde, Burlon / Muck Petzet Architekten
Level 0.5 plan
Terrassenhaus Berlin (2014-2018)
Designed by Brandlhuber + Emde, Burlon / Muck Petzet Architekten
Level 1 plan
Terrassenhaus Berlin (2014-2018)
Designed by Brandlhuber + Emde, Burlon / Muck Petzet Architekten
Level 2 plan
Terrassenhaus Berlin (2014-2018)
Designed by Brandlhuber + Emde, Burlon / Muck Petzet Architekten
Level 3 plan
Terrassenhaus Berlin (2014-2018)
Designed by Brandlhuber + Emde, Burlon / Muck Petzet Architekten
Level 4 plan
Terrassenhaus Berlin (2014-2018)
Designed by Brandlhuber + Emde, Burlon / Muck Petzet Architekten
Level 5 plan
Terrassenhaus Berlin (2014-2018)
Designed by Brandlhuber + Emde, Burlon / Muck Petzet Architekten
Roof floor plan
Terrassenhaus Berlin (2014-2018)
Designed by Brandlhuber + Emde, Burlon / Muck Petzet Architekten
Main elevation
Terrassenhaus Berlin (2014-2018)
Designed by Brandlhuber + Emde, Burlon / Muck Petzet Architekten
Photo Erica Overmeer
Terrassenhaus Berlin (2014-2018)
Designed by Brandlhuber + Emde, Burlon / Muck Petzet Architekten
Photo Erica Overmeer
Terrassenhaus Berlin (2014-2018)
Designed by Brandlhuber + Emde, Burlon / Muck Petzet Architekten
Photo Erica Overmeer
Terrassenhaus Berlin (2014-2018)
Designed by Brandlhuber + Emde, Burlon / Muck Petzet Architekten
Photo Erica Overmeer
Terrassenhaus Berlin (2014-2018)
Designed by Brandlhuber + Emde, Burlon / Muck Petzet Architekten
Photo Erica Overmeer
Terrassenhaus Berlin (2014-2018)
Designed by Brandlhuber + Emde, Burlon / Muck Petzet Architekten
Photo Erica Overmeer
Terrassenhaus Berlin (2014-2018)
Designed by Brandlhuber + Emde, Burlon / Muck Petzet Architekten
Cross section
Terrassenhaus Berlin (2014-2018)
Designed by Brandlhuber + Emde, Burlon / Muck Petzet Architekten
Longitudinal section
Terrassenhaus Berlin (2014-2018)
Designed by Brandlhuber + Emde, Burlon / Muck Petzet Architekten
Ground floor plan
Terrassenhaus Berlin (2014-2018)
Designed by Brandlhuber + Emde, Burlon / Muck Petzet Architekten
Level 0.5 plan
Terrassenhaus Berlin (2014-2018)
Designed by Brandlhuber + Emde, Burlon / Muck Petzet Architekten
Level 1 plan
Terrassenhaus Berlin (2014-2018)
Designed by Brandlhuber + Emde, Burlon / Muck Petzet Architekten
Level 2 plan
Terrassenhaus Berlin (2014-2018)
Designed by Brandlhuber + Emde, Burlon / Muck Petzet Architekten
Level 3 plan
Terrassenhaus Berlin (2014-2018)
Designed by Brandlhuber + Emde, Burlon / Muck Petzet Architekten
Level 4 plan
Terrassenhaus Berlin (2014-2018)
Designed by Brandlhuber + Emde, Burlon / Muck Petzet Architekten
Level 5 plan
Terrassenhaus Berlin (2014-2018)
Designed by Brandlhuber + Emde, Burlon / Muck Petzet Architekten
Roof floor plan
Terrassenhaus Berlin (2014-2018)
Designed by Brandlhuber + Emde, Burlon / Muck Petzet Architekten
Main elevation
The two German practices designed a rough structure that is adaptable to the needs of the inhabitants, with narrow and deep apartments, without internal partitions and with only a central core that contains services and the elevator.
The architects say: “Social norms in architecture structure our expectations of living together and often reduce the complexity of social interaction. At the same time, they form a framework in which the users can behave safely and freely.”
The building was initially intended to be a micro-intervention, with only exhibition and commercial spaces. The designers convinced the client to construct a mixed-use building that would maximise the volume available and not sacrifice large, high-quality public spaces, making the boundary between the public and private sectors blurred.
The building is a concrete response to the dizzying rise in property costs and the parallel collapse in the spatial and social qualities of architecture in the German capital.
“The Terrassenhaus Berlin manages to raise the questions of private and public by introducing a building model for the urban context. With their abnormal depth, the terraces create a degree of distance and privacy, while at the same time, the external staircases — connecting the communal garden with the public roof — produce encounters of every kind, wanted and unwanted,” say the architects.
Terrassenhaus Berlin is among the 40 projects selected for the Mies Award 2019.
- Project:
- Terrassenhaus Berlin
- Program:
- mixed use
- Architect:
- Brandlhuber + Emde, Burlon / Muck Petzet Architekten
- Design team:
- Luise Angelmaier, Sarina Arnold, Romina Falk, Tobias Hönig, Martha Michalski, Birgit Müller, Alexine Sammut, Eva Sievert Asmussen, Markus Rampl, Christian Rapp, Lukas Vögel, Marco Wagner, Wolfram Winter, Natalia Zhukova
- Completion:
- 2018
