In the idyllic setting of Baisha, a village in the Yunnan province and close to the mountains, Tsutsumi & Associates renovated a cluster of traditional houses of the Naxi ethnic group. Today, traditional buildings in the rural areas of China are increasingly subject to renovations as retreats for city dwellers.
View gallery
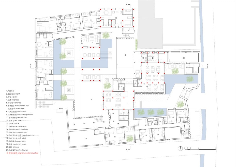
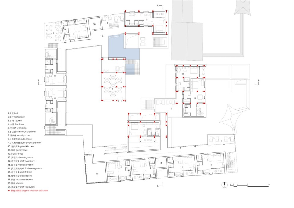
The project includes the reuse of four existing houses, the renovation of the main gate, the design of new insertions in the complex as well as landscaping of the common spaces. A wall inscribes all the elements creating closed and intimate complex, with three original building – which original structure has been preserved – invading the central void; this space at the centre is punctuated by greens and water mirrors. The access in located on the Eastern side main gate, a monumental entrance. The series of passages that softly connects all the new and existing elements develops on both floors of the complex. Local materials such as Donba paper, raw stone and aged wood, have been used to harmonise the new with the old.
View gallery
- Project:
- Tsingpu Baisha Retreat
- Program:
- resort hotel
- Location:
- Zhongyi Sishe, Baisha Village, Baisha Town, Lijiang, China
- Architects:
- Tsutsumi & Associates
- Team:
- Yoshimasa Tsutsumi, Siming Li, Weiwei Shi; interns: Lin Song, Jun Cui
- Production:
- Tian Shao Yin
- Lighting Design:
- Lightmoment co.,ltd (Keigo Tanaka, Yoshihiro Kanamori)
- Facility planning:
- Beijing Dongzhouji Technical Consultation(Hoshiaki Ishikawa (Hoshiaki Ishikawa, Katsunori Takebayashi, Ryuji Yamazaki)
- Structural engineering:
- Beijing Yanhuang International Architecture & Engineering Co.,Ltd. (Liansheng Bao, Yanhui Liu)
- Main contractor:
- Yunnan Lixiang Zhuangshi Sheji Gongcheng Youxian Gongsi
- Area:
- 2482.5 sqm
- Completion:
- 2017
