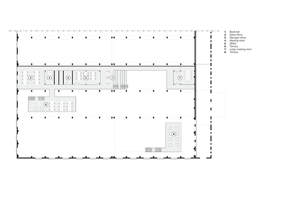
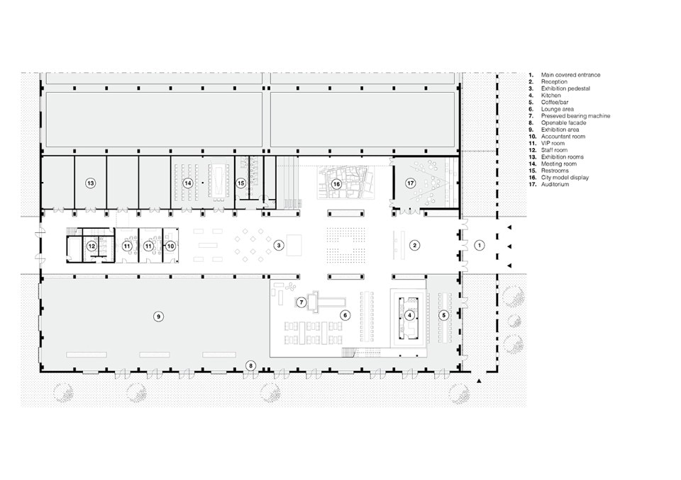
Superimpose designed a cultural center for Changzhi, a city in Shanxi Province of China. The main design challenge for Superimpose was to either erase the current city fabric or try to preserve the province’s fewest remaining industrial heritage. The Changzhi City Expo hosts an exhibition centre, a government-meeting centre, office spaces and an auditorium. Key features of the factory are the repetitive structural frames, the unique and wall-painted propaganda slogans, and rhythmic facade openings.
View gallery
The original load bearing factory facade was concealed by an office extension on the east side that had a comparatively denser grid wall structure. Superimpose proposed a veranda by removing all the interior subdivisions of the extension, revealing the original factory facade and made this into the main entrance of the Exhibition Centre. The essence of the extension is kept by framing the original windows and doors without any infill.The repetitive nature of the South facade is emphasised by replacement of protruded black aluminium frames and clear double glazed windows, with operable pivot doors for outdoor events. Superimpose embraces the original architectural qualities of the factories by overlaying them with carefully considered and minimalistic modifications and interventions. Materials and labour are all locally resourced and taken into account in the early stages of the design process.
- Project:
- Re-Veil
- Program:
- cultural center
- Location:
- Changzhi, China
- Architect:
- Superimpose Architecture – Carolyn Leung, Ben de Lange, Ruben Bergambagt
- Design team:
- Carolyn Leung, Ben de Lange, Ruben Bergambagt, Pablo Gonzalez, Huimin Xie, Xiaoyu Xu
- Area:
- 6,000 sqm
- Completion:
- 2018
