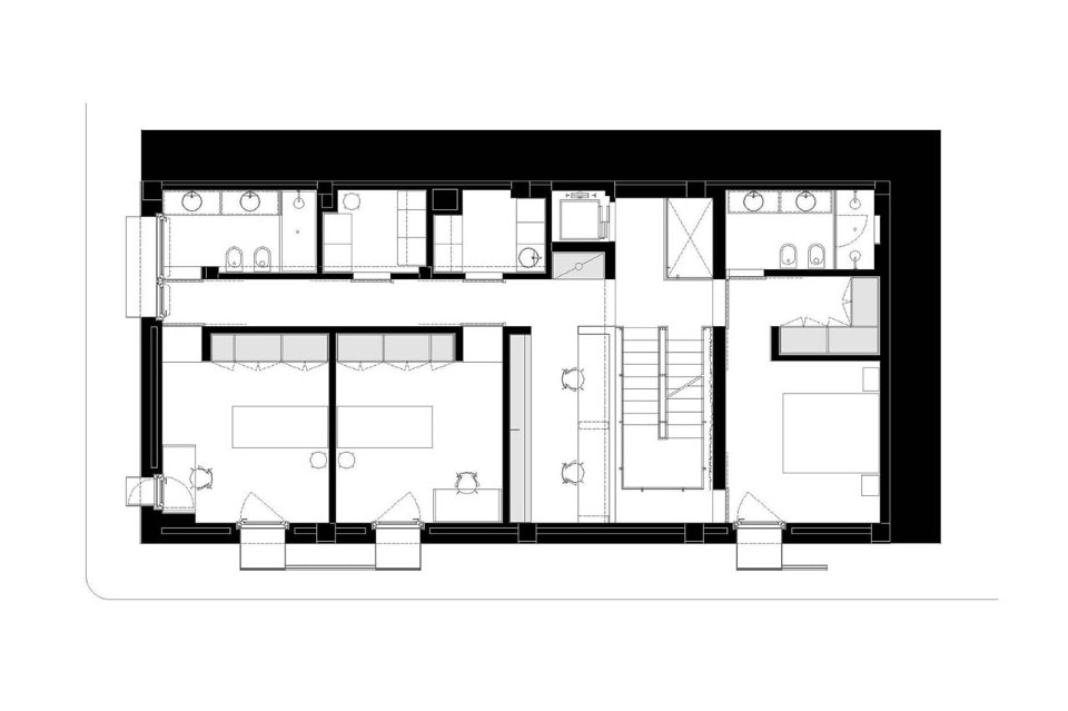
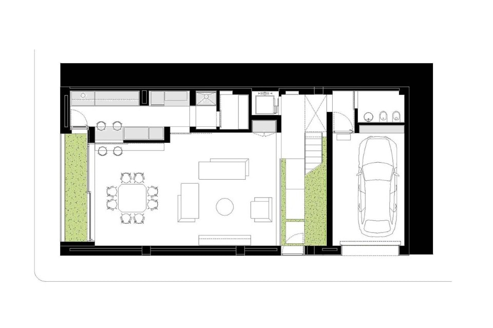
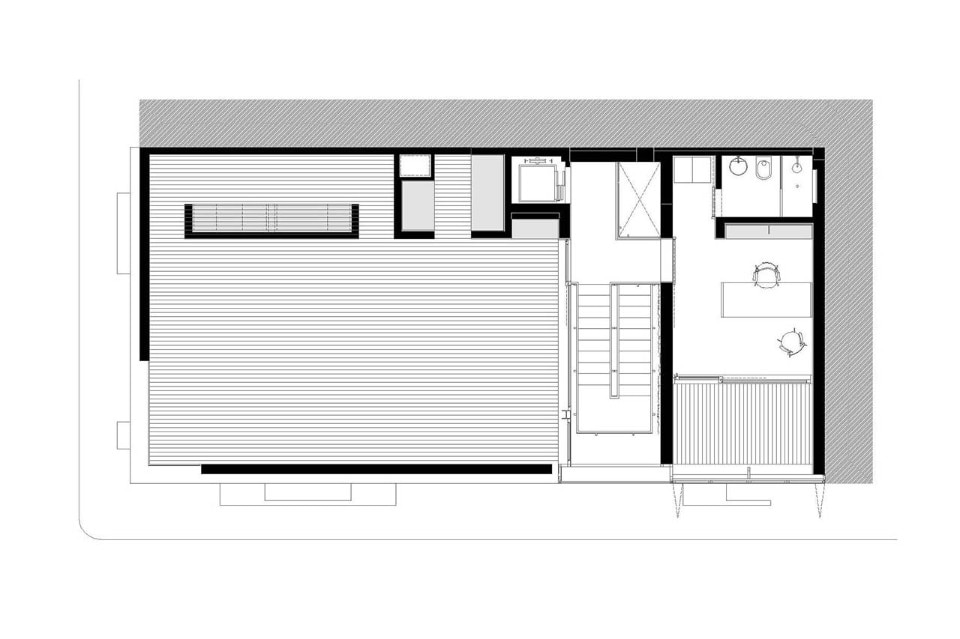
La casa prevede una zona giorno al piano terra, zona notte al primo piano e uno studio al piano superiore, dove si genera la relazione più forte con lo spazio aperto grazie alla presenza di un ampio terrazzo. Il progetto risolve il rapporto con la strada e la luce isolandosi dal piano della strada e allentando il rapporto con essa, senza perdere l’illuminazione naturale.
Casa CS quindi si chiude e si solleva dalla quota zero: la facciata a est è completamente cieca nel primo piano mentre quella a sud è stata arretrata e interrotta da brise-soleil, illuminando l’interno e dotando lo spazio di una piccola pertinenza verde. Altra fonte di luce è il vano scala: una struttura in acciaio e legno, leggera e sospesa, che dalle ampie aperture all’ultimo piano conduce e illumina tutto l’interno fino alla zona giorno inferiore.
Galleria
Casa CS, Bitritto, Bari, Italia
Tipologia: casa unifamiliare
Architetti: moramarco+ventrella architetti
Strutture: G. Pantaleo
Impianti: M. D’Eligio
Consulenti: A. Esposito, G. Vecchi
Collaboratori: A. Berardi, A. Carannante
Impresa: Aresta Costruzioni
Costo: 350.000 €
Area: 300 mq
Completamento: 2014
