Da quando nel 2022 ha chiuso al pubblico per essere rinnovata, la Finlandia Hall di Helsinki è stata tra gli edifici più attesi degli ultimi anni. Il progetto originale è del maestro del modernismo nordico Alvar Aalto, architetto, designer e urbanista finlandese, che ha disegnato l’edificio nella fase finale della sua carriera. In realtà, la Finlandia Hall faceva parte di un più ampio masterplan della città che Aalto aveva già iniziato a ideare all’inizio degli anni ’60, mai realizzato.
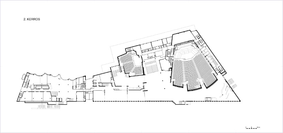
Oggi, il progetto di restauro e rinnovamento di Arkkitehdit Nrt mantiene il carattere maestoso e organico dell’opera, migliorandone la condizione. L’intervento, infatti, risponde a una duplice esigenza: prima di tutto riportare l’edificio a uno stato ottimale, con un procedimento che ha richiesto un profondo restauro degli elementi dell’architettura organica di Aalto, con la sostituzione del marmo di Carrara delle facciate – messo a dura prova dal clima rigido - e il trattamento di superfici interne e arredi, che sono stati accuratamente riportati alla loro originale bellezza. Poi, c’era l’esigenza di rinnovare l’edificio sia da un punto di vista ambientale, per ridurne le emissioni e aumentare l’efficienza energetica degli impianti, sia nel programma funzionale, che a distanza di quasi sessant’anni, nonostante le soluzioni spaziali di Aalto fossero innovative e flessibili, risultava obsoleto.
Arkkitehdit Nrt ha quindi ridistribuito una parte degli oltre 30mila mq di superficie trasformando i vecchi magazzini e camerini in spazi espositivi, e introducendo una caffetteria e un ristorante che saranno aperti al pubblico a partire dall’estate del 2025.
Immagine di apertura: Foto Tuomas Uusheimo
