Galleria
1301-PD1001B-Vajrasana-SitePlan
Walters & Cohen Architects, Vajrasana Buddhist Retreat Centre, planimetria
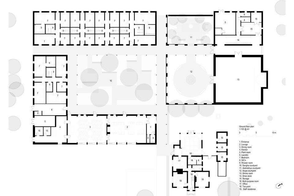
Ground Floor Plan
Walters & Cohen Architects, Vajrasana Buddhist Retreat Centre, piano terra
Vajrasana Buddhist Retreat Centre, Suffolk
Tipologia: uso misto
Architetti: Walters & Cohen Architects
Completamento: 2016
