View gallery
1301-PD1001B-Vajrasana-SitePlan
Walters & Cohen Architects, Vajrasana Buddhist Retreat Centre, site plan
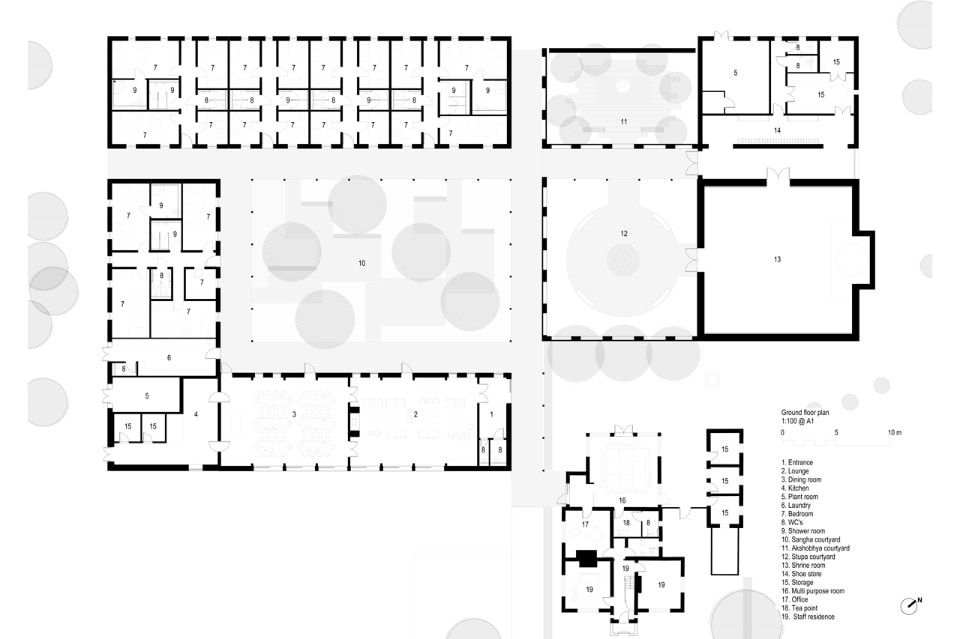
Ground Floor Plan
Walters & Cohen Architects, Vajrasana Buddhist Retreat Centre, ground floor
Vajrasana Buddhist Retreat Centre, Suffolk
Program: mixed-use
Architects: Walters & Cohen Architects
Completion: 2016
