Risultati
Nessun elemento trovato
Ricerca troppo corta
Enter Projects: LOT1
Progettato da Enter Projects, Lot1 esplora geometrie complesse e il collegamento tra forma e funzione, con interni progettati utilizzando le più recenti tecnologie digitali.
LOT1 a 20 York Street, Sydney, è un progetto di conversione di un vecchio magazzino. Il design esplora geometrie complesse e il collegamento tra forma e funzione, con interni progettati utilizzando le più recenti tecnologie digitali. Legno locale è stato utilizzato per le complesse geometrie curve che ruotano, si spiegano e collegano tutte le funzioni del locale, come in un viaggio nello storico locale di Sydney.
Enter Projects, LOT 1 Café, Bar & Restaurant, Sydney, 2016
Gli spazi sono stati spogliati per rivelare la vecchia struttura dell’edificio: mattoni a vista, pareti di arenaria, colonne di legno e carpenteria metallica. Alla materia dell’edificio esistente si contrappone la nuova e liscia forma continua, con impiallacciature di legno duro australiano con integrato un sistema di illuminazione adattabile.
Enter Projects, LOT 1 Café, Bar & Restaurant, Sydney, 2016
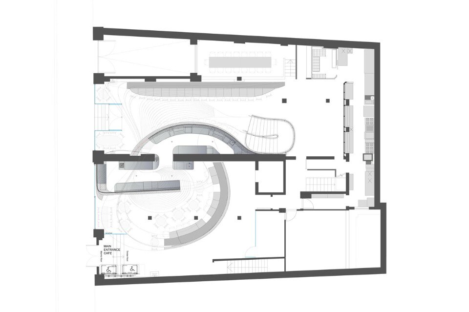
Un attento studio della pianta ha ottimizzato i flussi dei clienti all’interno del ristorante. Le dinamiche geometrie curve si intrecciano nei diversi spazi, il progetto non può essere quindi compreso da un unico punto di vista.
Enter Projects, LOT 1 Café, Bar & Restaurant, Sydney, 2016
Il progetto è un insolito connubio tra un estetica contemporanea e funzionalità dello spazio. Una rigorosa pianificazione dello spazio è stata richiesta sia nella parte anteriore sia posteriore della casa a fianco, utilizzando una tavolozza di colori ben precisa per creare un ambiente confortevole e rilassante. La complessa forma doveva risolvere le molteplici funzioni tra cui servizi, sedute, illuminazione e spazi privati.
Galleria
SHARE
PIN IT
SHARE
PIN IT
SHARE
PIN IT
SHARE
PIN IT
SHARE
PIN IT
SHARE
PIN IT
Enter Projects, LOT 1 Café, Bar & Restaurant, Sydney, 2016
SHARE
PIN IT
Enter Projects, LOT 1 Café, Bar & Restaurant, Sydney, 2016
SHARE
PIN IT
Layout1-GENERIC PLANS
Enter Projects, LOT 1 Café, Bar & Restaurant, pianta
SHARE
PIN IT
GENERAL SECTION
Enter Projects, LOT 1 Café, Bar & Restaurant, sezione
SHARE
PIN IT
GENERAL SECTION
Enter Projects, LOT 1 Café, Bar & Restaurant, sezione
SHARE
PIN IT
AAXO1 up
Enter Projects, LOT 1 Café, Bar & Restaurant, assonometria
SHARE
PIN IT
LOT 1 Café, Bar & Restaurant Tipologia: ristorante Architetti:Enter Projects Costruzione: CJ Duncan Cliente: Primo IP Area: 945 mq Completamento: 2016