results
No results
Please enter a long search term
Enter Projects: LOT1
Designed by Enter Projects, Lot 1 explores complex geometry and the connection of form and functionality utilising digitally fabricated interiors.
Lot1 at 20 York Street, Sydney, is a conversion project from an original storage house & cart-way, to a retail store, to Lot 1. The design explores complex geometry and the connection of form and functionality utilising digitally fabricated interiors. Curved timber geometries using native Australian materials join seamlessly to circulate, unfold and connect all of the functions of the venue while providing a journey through the historic Sydney interior.
Enter Projects, LOT 1 Café, Bar & Restaurant, Sydney, 2016
Spaces were stripped back to reveal the existing fabric of the building; principally exposed brick, sandstone walls, wooden columns and old steel work, all serving the building during it’s many stages and all integral to the rich, original tapestry. The existing features are intelligently juxtaposed by the continuity of the new form and the smooth Australian hardwood veneers are further layered by an adaptable lighting scheme.
Enter Projects, LOT 1 Café, Bar & Restaurant, Sydney, 2016
Careful spatial planning has maximised foot traffic within the interlinking coffee shop and restaurant. The downstairs offers private lounges and dinner booths with the basement mezzanine giving an option of alfresco dining. Dynamic geometries interlace the many spaces with 3 dimensional curves ensuring that the project cannot be comprehended from one single vantage point.
Enter Projects, LOT 1 Café, Bar & Restaurant, Sydney, 2016
The design solution is an unusual marriage of awe-inspiring aesthetics and full functionality within one given space: using non-orthogonal geometry, it delivers a form that remains responsive to its function and surroundings. Rigorous space planning was required both front and back of house alongside a well defined but subtle colour palette which created a comfortable and atmospheric environment. The gymnastics of the geometry were required to perform multiple functions including service, seating, privacy and lighting.
View gallery
SHARE
PIN IT
SHARE
PIN IT
SHARE
PIN IT
SHARE
PIN IT
SHARE
PIN IT
SHARE
PIN IT
Enter Projects, LOT 1 Café, Bar & Restaurant, Sydney, 2016
SHARE
PIN IT
Enter Projects, LOT 1 Café, Bar & Restaurant, Sydney, 2016
SHARE
PIN IT
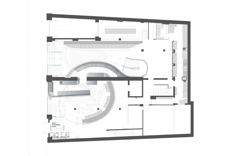
Layout1-GENERIC PLANS
Enter Projects, LOT 1 Café, Bar & Restaurant, plan
SHARE
PIN IT
GENERAL SECTION
Enter Projects, LOT 1 Café, Bar & Restaurant, section
SHARE
PIN IT
GENERAL SECTION
Enter Projects, LOT 1 Café, Bar & Restaurant, section
SHARE
PIN IT
AAXO1 up
Enter Projects, LOT 1 Café, Bar & Restaurant, axonometric view
SHARE
PIN IT
LOT 1 Café, Bar & Restaurant Program: restaurant Architect:Enter Projects Contractor: CJ Duncan Client: Primo IP Completion: 2016