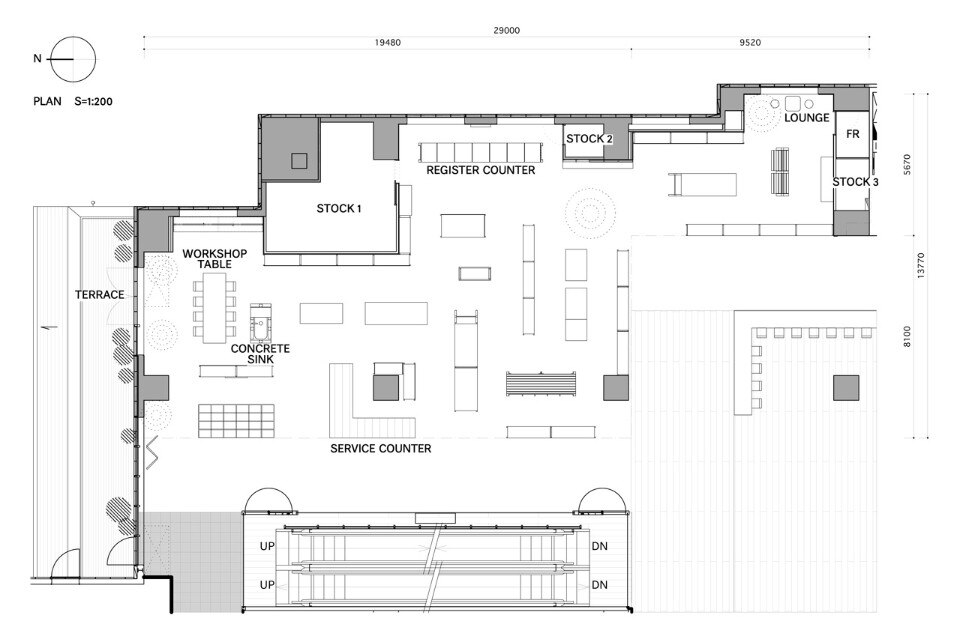
Arredi diversi, tra cui griglie in acciaio convertite utilizzando il legno, elementi angolari in legno e mobili antichi, con differenti altezze e profondità, sono disposti per creare uno spazio dove i clienti possono circolare liberamente.
In questo modo gli architetti hanno creato l’atmosfera di un vecchio negozio di antiquariato, dove i clienti possono fare shopping come se stessero giocando a una caccia al tesoro.
Galleria
Today’s Special, Kyoto, Giappone
Tipologia: negozio
Architetti: Schemata Architects (Jo Nagasaka)
Team di progetto: Masami Nakata
Imprese: DECOR Co., New Constructor's Network Co.
Area: 284 mq
Completamento: ottobre 2015
