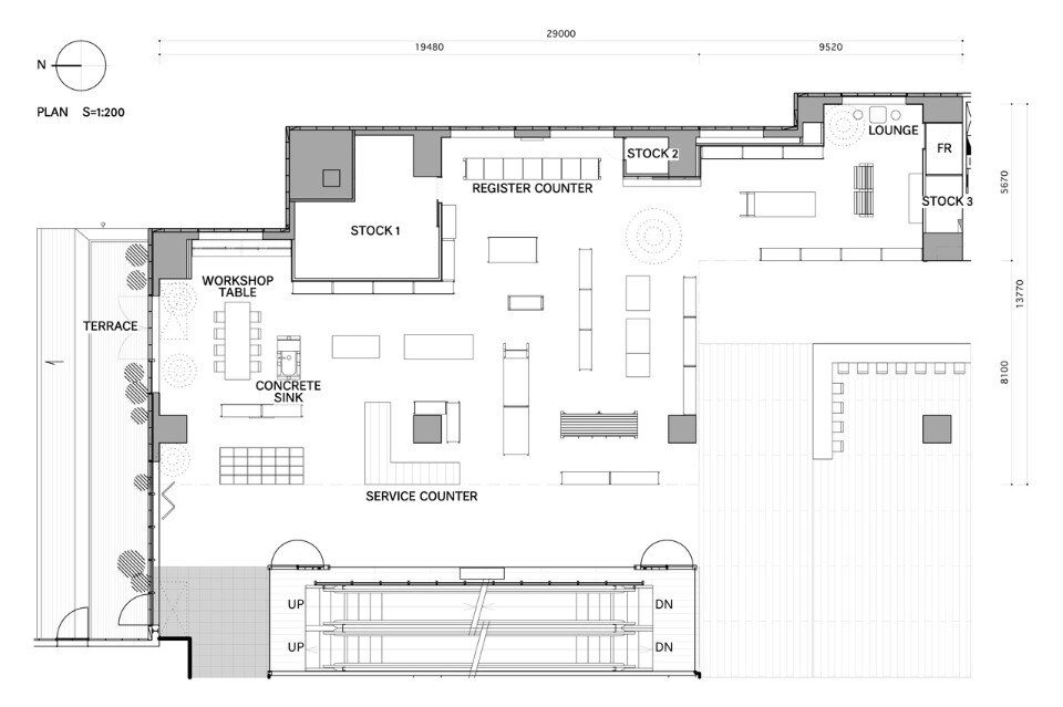
Various furniture, including converted steel racks using wood, furniture composed of wood angles, antique furniture etc. with different heights and depths are placed to create a shop space where customers can circulate freely.
As a result, the architects created an atmosphere of an old antique shop in this new shop-in-shop, where customers can enjoy shopping as if they are playing a treasure hunt.
View gallery
Today’s Special, Kyoto, Japan
Program: shop
Architects: Schemata Architects (Jo Nagasaka)
Project team: Masami Nakata
Contractors: DECOR Co., New Constructor's Network Co.
Area: 284 sqm
Completion: October 2015
