Ogni edificio ha tre piani accessibili direttamente attraverso le singole scale, in modo da ridurre al minimo lo spazio comune e massimizzare la quantità di spazio che può essere affittata. I due parallelepipedi si uniscono per disegnare una grande sfera, che nasce dall’accostamento di due cavità e rappresenta la lunca. La cavità di destra è controbilanciata da un balcone aggettante, anch’esso curvilineo.
Quella di sinistra è bucata da una fessura orizzontale. Anche gi altri lati degli edifici hanno punti di contatto con la sfera, che fornisce profondità e aperture. Le irregolarità create nei punti di incontro con la sfera diventano spazi convessi negli interni. I piani superiori – con soffitti a cupola – dispongono di giardini esterni con alte mura, ma una serie di aperture rotonde offre punti di trasparenza in un edificio peraltro molto solido. Le pareti autoportanti sono perforate in sommità con i simboli delle costellazioni del segno astrale dei due committenti.
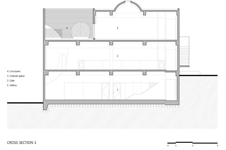
Galleria
Two Moon, Ilsandong-gu, Goyang-si, Gyeonggi-do, Corea del Sud
Tipologia: centro culturale
Architetti: Moonbalsso (Moon Hoon)
Team di progetto: Jang Dukhyun, Park jungwook
Impresa: Nakhyunjae
Ingegneria strutturale: Hanwoori structure
Ingegneria meccanica ed elettrica: Chunghyo High-tech
Budget: 500 milioni KRW
Area: 257 mq
Completamento: 2015
