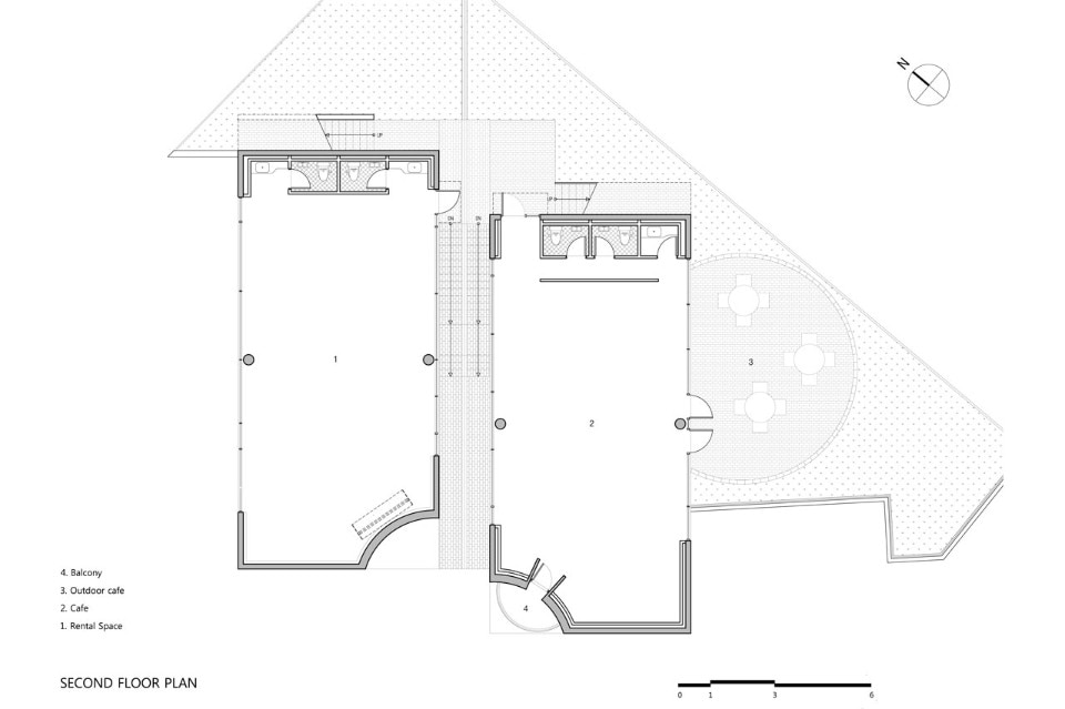
Each building has three floors that can be accessed directly via individual staircases, by doing so, common space can be reduced to minimum while maximum can be allocated for rental usage. The two boxes have an encounter with a large sphere, thus having a distinct concave space that signifies a moon motif. Right one is imbued with a balcony like a lure.
The left one is given a horizontal slit. The other sides of the buildings also have contact points with small sphere, providing depth and apertures. The irregularities provided by contacts with the sphere are carried into the building to become space with some bulges, a space with some convex. The top floors have outdoor gardens with high walls, but round apertures give much transparencies among much solidified building. A mini pantheon like domes are also provided on the top floors. The free standing walls on the third floors are punctured with horoscopes representing each client.
View gallery
Two Moon, Ilsandong-gu, Goyang-si, Gyeonggi-do, Korea
Program: cultural centre
Architects: Moonbalsso (Moon Hoon)
Design team: Jang Dukhyun, Park jungwook
Construction: Nakhyunjae
Structural engineering: Hanwoori structure
Mechanical/Electric engineer: Chunghyo High-tech
Budget: 500 million KRW
Area: 257 sqm
Completion: 2015
