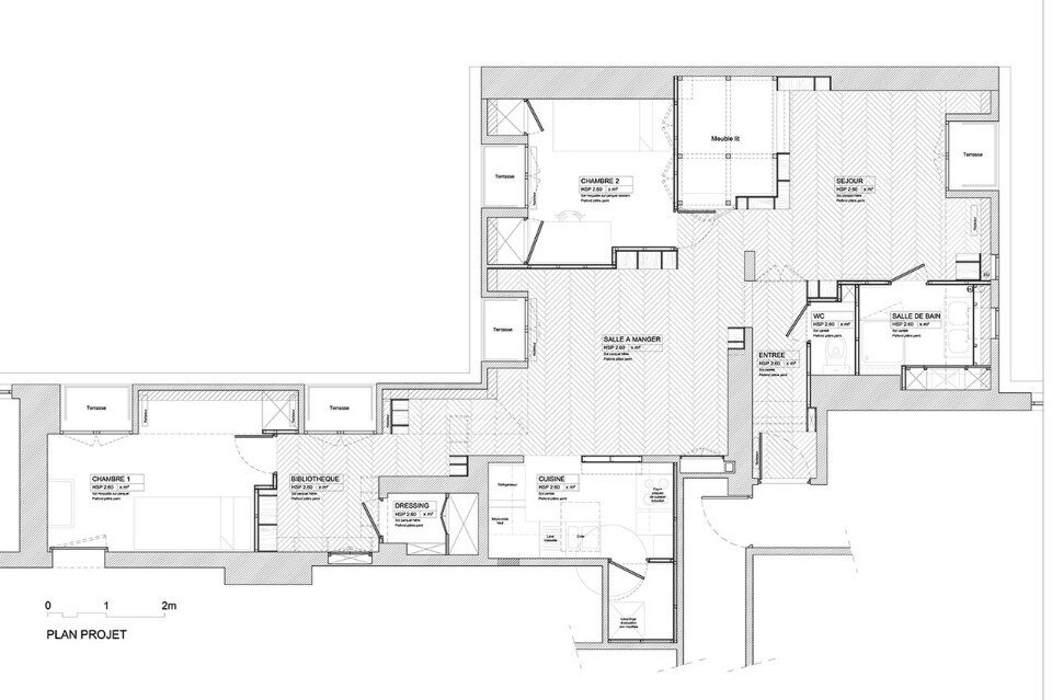
Ogni bambino ha la propria camera da letto e lo spazio di vita comune è aperto e sudduvuso da elementi di arredo che sono stati progettati in modo da seguire le linee degli spioventi del tetto, formando un paesaggio di “totem”.
Questi elementi comprendono librerie e contenitori di diverso tipo. Un’apertura diagonale che segna tutto il salone principale diventa così l’elemento predominante, che fa dimenticare le dimensioni iniziali piuttosto strette.
Questa lettura dell’appartamento è ulteriormente enfatizzata con il gioco di contrasti tra le superfici bianche e quelle in legno di rovere.
Galleria
Appartamento Arsenal, Parigi, Francia
Tipologia: appartamento
Architetti: h2o architectes
Impresa: Sarl Poluks
Budget: 70.000 €
Area: 70 mq
Completamento: 2015
