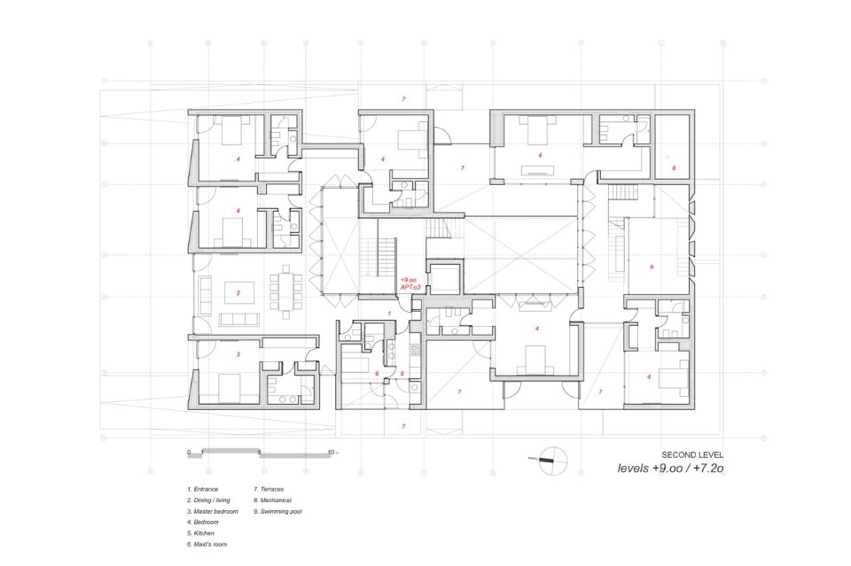
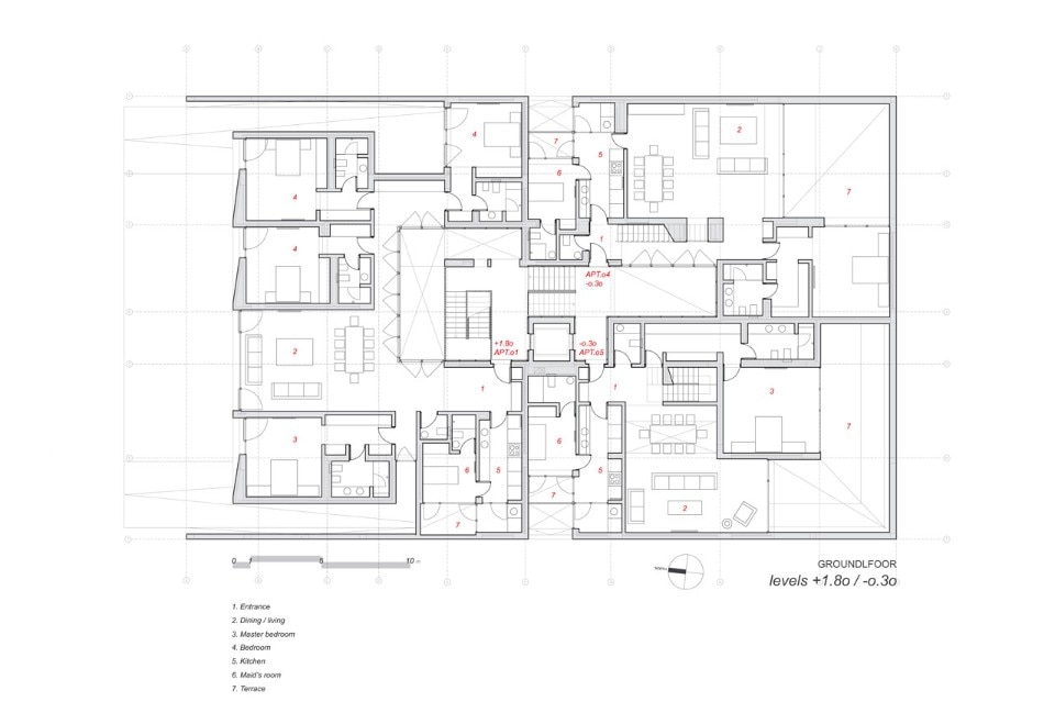
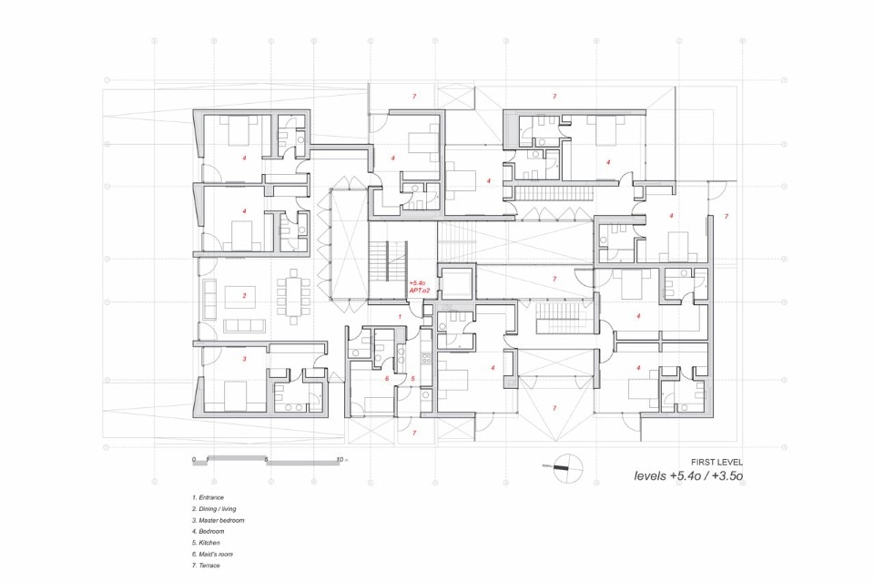
Questo nucleo vuoto è l’elemento fondamentale della residenza. Permette alla luce naturale di filtrare negli spazi interni, creando uno spazio aperto di notevoli dimensioni in un complesso denso. Serve come spazio comune migliorando l’esperienza di vita sociale, con il resto del programma funzionale che si sviluppa intorno a esso. La tinta verde che avvolge lo spazio ammorbidisce la luce penetrante e il clima ostile del Golfo Arabico, offrendo un ambiente piacevole e un terreno fertile per far crescere un piccolo giardino.
Di fronte alla strada e sulla facciata principale, tre appartamenti occupano tre diversi livelli. La parte posteriore dell’edificio è dedicata ai duplex su quattro livelli: due unità al primo e secondo piano, una al terzo e quarto piano. Queste unità sono progettate per offrire ampi spazi e privacy; diversi cortili e terrazze private sono resi possibili grazie a questo cambiamento di layout.
Galleria
\\agi-architects.com\Store\Data\01_ARCH\01_PROJECTS\KW\KW.10.0158\06_Final Documentation\Graphics\DWG\KW.10.0158_Plans Model (1)
\\agi-architects.com\Store\Data\01_ARCH\01_PROJECTS\KW\KW.10.0158\06_Final Documentation\Graphics\DWG\KW.10.0158_Plans Model (1)
\\agi-architects.com\Store\Data\01_ARCH\01_PROJECTS\KW\KW.10.0158\06_Final Documentation\Graphics\DWG\KW.10.0158_Plans Model (1)
Green Core, Kuwait City
Tipologia: complesso residenziale
Architetti: AGi architects
Titolari: Nasser B. Abulhasan, Joaquín Pérez-Goicoechea
Team: Gwenola Kergall, Lucía Sánchez Salmón, Carmen Sagredo Rodríguez, Hanan Alkouh, Aisha Alsager, Awrad Tifooni
Area: 2.800 mq
Completamento: 2015
