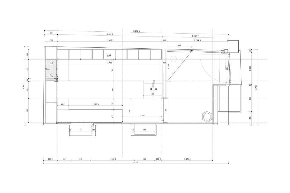
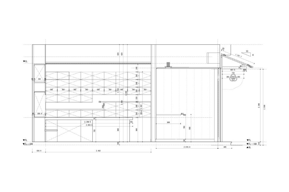
Galleria
Miwa, Parigi
Tipologia: negozio
Architetti: Fumihiko Sano, studio Phenomenon
Impresa: Sagara builder, Tsumiki drawing builder
Opere in legno Higashishirakawa village forest association, Higashisirakawa lumber cooperative
Area: 15,6 mq
