View gallery
Miwa, Paris
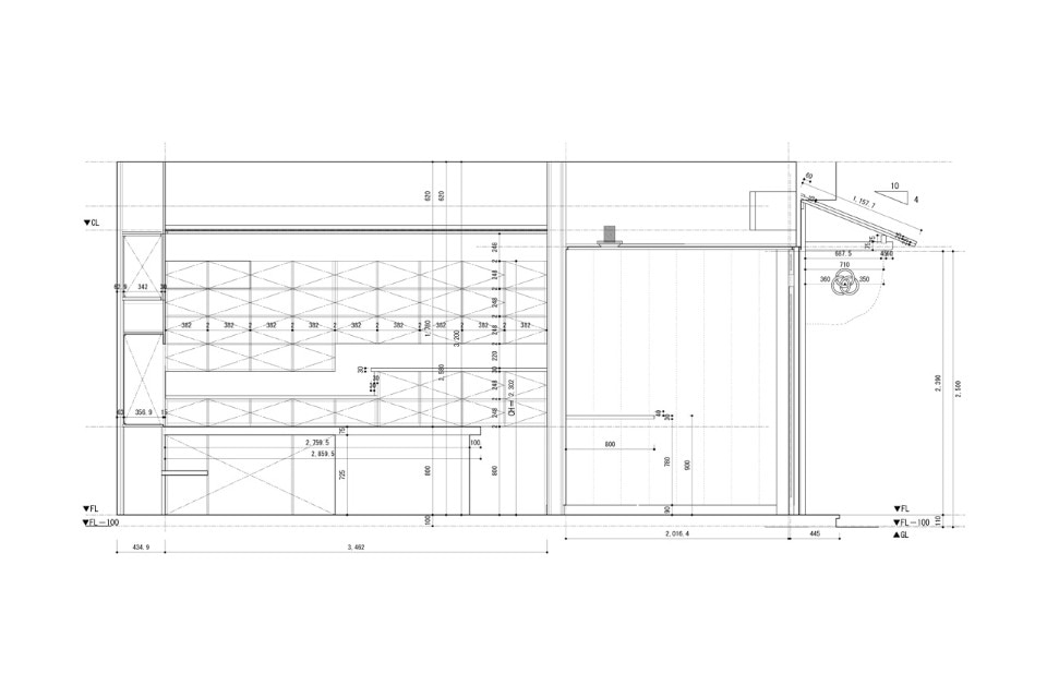
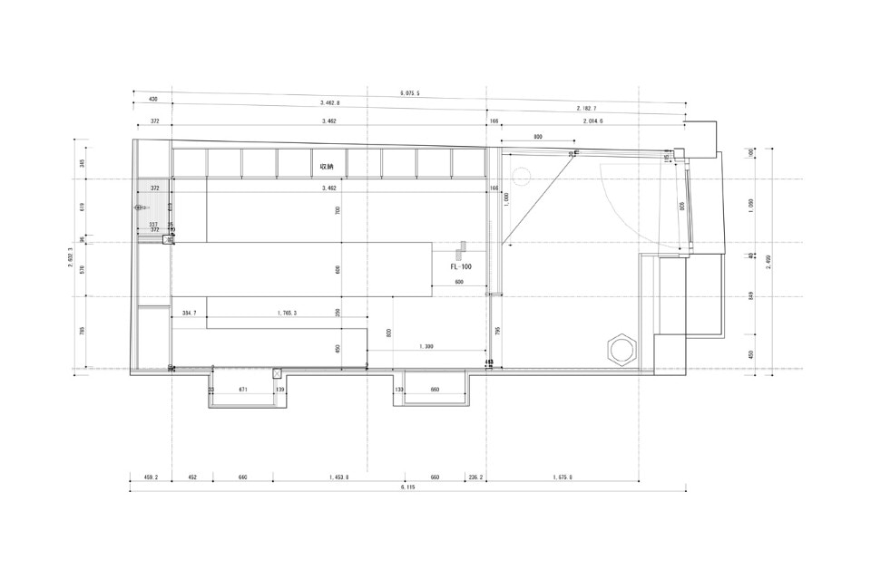
Program: shop
Architects: Fumihiko Sano, studio Phenomenon
Construction: Sagara builder, Tsumiki drawing builder
Wood cooperation: Higashishirakawa village forest association, Higashisirakawa lumber cooperative
Area: 15,6 sqm
