Lo studio si trova in un li-long – un tipico quartire della fine del XIX secolo caratterizzato dai vicoli che collegano storia, edifici, abitanti e pettegolezzi.
Nel corso degli anni, questo calicanto ha testimoniato il passare del tempo, sopravvivendo a numerosi abusi e a una mancanza di manutenzione. Per proteggerlo e mantenerlo segreto, Lukstudio ha creato un “contenitore” che da una grande porta vetrata incorniciata in un portico d’acciaio conduce a una serie di spazi che comprende una galleria d’ingresso, locali di servizio e dispensa.
Galleria
Lukstudio, Office around a tree, Shanghai. Photo Peter Dixie for LOTAN Architectural Photography
Lukstudio, Office around a tree, Shanghai. Photo Peter Dixie for LOTAN Architectural Photography
Lukstudio, Office around a tree, Shanghai. Photo Peter Dixie for LOTAN Architectural Photography
Lukstudio, Office around a tree, Shanghai. Photo Peter Dixie for LOTAN Architectural Photography
Lukstudio, Office around a tree, Shanghai. Photo Peter Dixie for LOTAN Architectural Photography
Lukstudio, Office around a tree, Shanghai. Photo Peter Dixie for LOTAN Architectural Photography
Z:\lukstudio\1-Projects\1-Current\2013\new office\0-Project Management\04-post-construction\2-WEB\CAD\A101 - LUK-NEW-OFFICE- ge
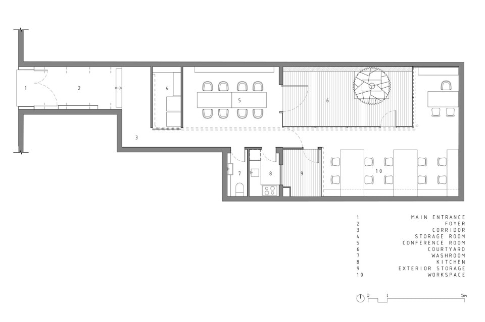
Lukstudio, Office around a tree, Shanghai. Pianta
Office around a tree, Shanghai
Tipologia: ufficio
Architetti: Lukstudio
Team di progetto: Christina Luk, Wesley Shu, Scott Baker, Mavis Li
Impresa: Shanghai Dong Yuan
Arredi: Hay, Paustian, Fermob
Luci: Tons
Area: 133 mq
Completamento: 2014
