Il tema per il Padiglione della Cina è “Terra di Speranza”. Il progetto incarna questo concetto attraverso la forma ondulata del tetto, derivato dalla fusione del profilo di uno skyline cittadino sul lato nord, con il profilo di un paesaggio sul lato sud, per esprimere l’idea che la “speranza” esiste quando città e natura sono in armonia. Concepito come una struttura in legno che fa riferimento al sistema “a travi sospese” dell’architettura tradizionale cinese, il tetto del padiglione utilizza anche la tecnologia moderna per creare lunghe campate adeguate alla natura pubblica dell’edificio.
Il tetto è ricoperto di pannelli che fanno riferimento al tradizionale rivestimento in tegole di ceramica, reinterpretate come grandi foglie di bambù che migliorano il profilo del tetto, mentre ombreggiano gli spazi pubblici sottostanti. Concepiti come schermi a strati, questi pannelli aggiungono consistenza e profondità al tetto del padiglione e creano suggestivi effetti di luce e di trasparenza sotto.
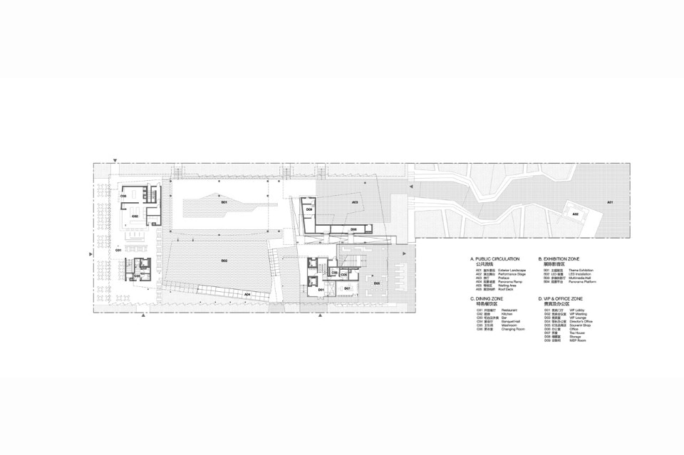
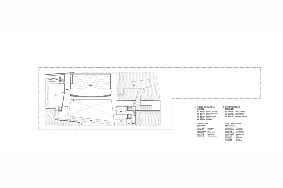
Il piano terra è definito da una piantagione di grano (la “terra della speranza”), che fa riferimento al passato agricolo della Cina. Questo paesaggio naturale si conduce a un’installazione multimediale a LED, posta al centro del campo, che costituisce il fulcro del programma espositivo del padiglione.
Gli eventi espositivi e culturali del padiglione si articolano come una sequenza di spazi, a cominciare da una zona d’attesa esterna, che conduce a uno spazio espositivo a tema con le installazioni interattive e le proposte culturali di diverse province cinesi. Successivamente, i visitatori vengono guidati lunga una scala pubblica che porta dolcemente verso una piattaforma di osservazione panoramica sopra l’installazione multimediale, e da qui raggiungono uno spazio multimediale con un cortometraggio dedicato alle riunioni di famiglia durante la festa di primavera. Questa sequenza si conclude nella piattaforma sopra il tetto di bambù, affacciata sul parco di Expo.
Padiglione Cinese, Terra di speranza, cibo per la vita, Expo Milano 2015
Architetti: Tsinghua University & Studio Link-Arc
Responsabile di progetto: Yichen Lu (Tsinghua University + Studio Link-Arc)
Architetti associati: Kenneth Namkung, Qinwen Cai, Ching-Tsung Huang (Studio Link-Arc)
Team di progetto: Mario Bastianelli, Alban Denic, Ivi Diamantopoulou, Shuning Fan, Zachary Grzybowski, Elvira Hoxha, Dongyul Kim, Hyunjoo Lee, Aymar Mariño-Maza (Studio Link-Arc)
Architetti e ingegneri locali: F&M Ingegneria
Ingegneria strutturale: Simpson Gumpertz & Heger
Ingeneria delle facciate: Elite Facade Consultants + ATLV
Ingegneria impantistica: Beijing Qingshang Environmental Art & Architectural Design
Direttore di progetto: Dan Su, Yue Zhang (Academy of Arts and Design, Tsinghua University)
Coordinatore di progetto: Yi Du (Academy of Arts and Design, Tsinghua University)
Allestimento: Yanyang Zhou, Danqing Shi (Academy of Arts and Design, Tsinghua University)
Paesaggio: Xiaosheng Cui (Academy of Arts and Design, Tsinghua University)
Interni: Jiansong Wang (Academy of Arts and Design, Tsinghua University)
Installazioni: Danqing Shi, Feng Xian (Academy of Arts and Design, Tsinghua University)
Illuminazione: Yi Du (Academy of Arts and Design, Tsinghua University)
Identità visiva: Xin Gu (Academy of Arts and Design, Tsinghua University)
Imprese: Zhong Yi, Bodino Engineering, Unique Eurpoe
Committente: China Council for the Promotion of International Trade
Completamento: 2015
