The theme for the China Pavilion is “The Land of Hope”. The project embodies this through its undulating roof form, derived by merging the profile of a city skyline on the building’s north side with the profile of a landscape on the south side, expressing the idea that “hope” can be realized when city and nature exist in harmony. Conceived as a timber structure that references the “raised-beam” system found in traditional Chinese architecture, the Pavilion roof also uses modern technology to create long spans appropriate to the building’s public nature.
The roof is covered in shingled panels that reference traditional pottery roof construction, but are reinterpreted as large bamboo leaves that enhance the roof profile while shading the public spaces below. Designed as layered screens, these panels add texture and depth to the Pavilion’s roof and create evocative light and transparency effects below.
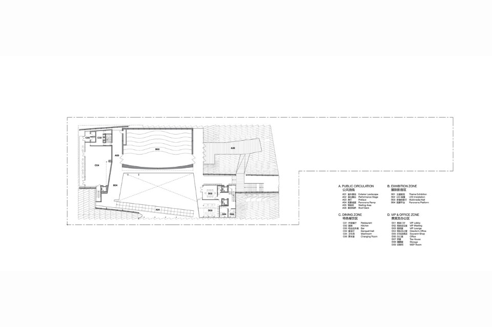
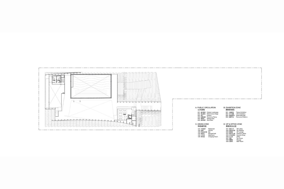
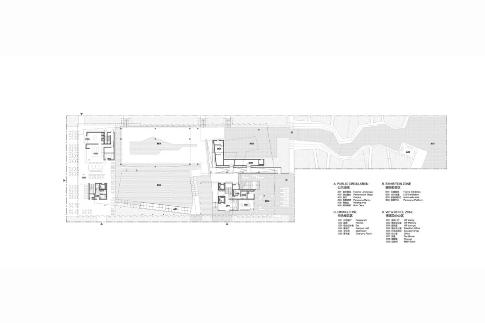
Beneath the roof, the building’s ground plane is defined by a landscape of wheat (the “land of hope”) that references China’s agrarian past. This natural landscape transitions seamlessly into an LED multimedia installation in the center that forms the centerpiece of the building’s exhibition program.
The Pavilion’s full exhibition and cultural offerings are experienced as a sequence of spaces, beginning with an exterior waiting area in the landscape, leading to a themed exhibition space with interactive installations and cultural offerings from differernt Chinese provinces. After this, visitors are guided up a gently sloped public stair to a panoramic viewing platform above the multimedia installation, after which they are guided into a multimedia space featuring a short film focusing on family reunions during China’s annual Spring Festival. This sequence concludes with visitors stepping outside the building onto a platform above the bamboo roof that enjoys expansive views of the Expo grounds.
Chinese Pavilion, Land of Hope, Food for Life, Expo Milano 2015
Architect: Tsinghua University & Studio Link-Arc
Chief Architect: Yichen Lu (Tsinghua University + Studio Link-Arc)
Associate In Charge: Kenneth Namkung, Qinwen Cai, Ching-Tsung Huang (Studio Link-Arc)
Project Team: Mario Bastianelli, Alban Denic, Ivi Diamantopoulou, Shuning Fan, Zachary Grzybowski, Elvira Hoxha, Dongyul Kim, Hyunjoo Lee, Aymar Mariño-Maza (Studio Link-Arc)
Architect and Engineer of Record: F&M Ingegneria
Structural Engineer: Simpson Gumpertz & Heger
Enclosure Engineer: Elite Facade Consultants + ATLV
MEP Engineer: Beijing Qingshang Environmental Art & Architectural Design
Design Director: Dan Su, Yue Zhang (Academy of Arts and Design, Tsinghua University)
Design Coordinator: Yi Du (Academy of Arts and Design, Tsinghua University)
Exhibition Design: Yanyang Zhou, Danqing Shi (Academy of Arts and Design, Tsinghua University)
Landscape Design: Xiaosheng Cui (Academy of Arts and Design, Tsinghua University)
Interior Design: Jiansong Wang (Academy of Arts and Design, Tsinghua University)
Installation Design: Danqing Shi, Feng Xian (Academy of Arts and Design, Tsinghua University)
Lighting Design: Yi Du (Academy of Arts and Design, Tsinghua University)
Visual Identity Design: Xin Gu (Academy of Arts and Design, Tsinghua University)
Constructors: Zhong Yi, Bodino Engineering, Unique Eurpoe
Client: China Council for the Promotion of International Trade
Completion: 2015
