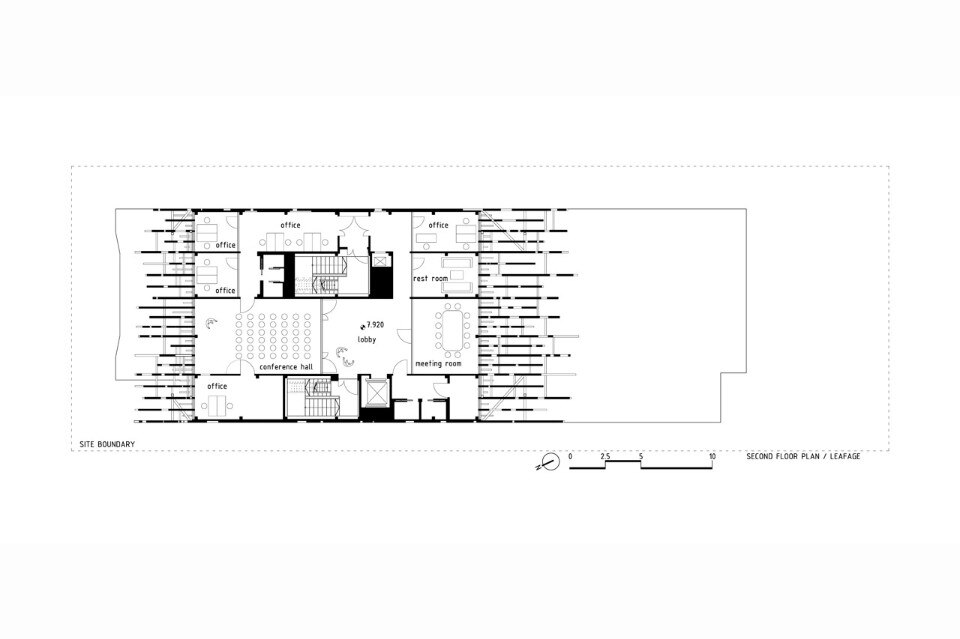
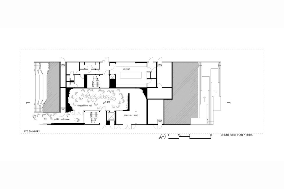
All’interno della “chioma”, ci sono il centro congressi e gli uffici.
La costruzione del padiglione userà materiali lignei come il legno lamellare incrociato (CLT), compensato, legno massiccio e isolamento in fibra di legno. Il telaio principale è in acciaio, installato su una piastra di fondazione in cemento.
Galleria
M:\01_darbi\049_expo_2015\07_DD\dwg\2014-06-19_publication Model (1)
MADE arhitekti, Padiglione Lettone, L’alveare della vita, Expo Milano 2015
M:\01_darbi\049_expo_2015\07_DD\dwg\2014-06-19_publication Model (1)
MADE arhitekti, Padiglione Lettone, L’alveare della vita, Expo Milano 2015
M:\01_darbi\049_expo_2015\07_DD\dwg\2014-06-19_publication Model (1)
MADE arhitekti, Padiglione Lettone, L’alveare della vita, Expo Milano 2015
Padiglione Lettone, L’alveare della vita, Expo Milano 2015
Architetti: MADE arhitekti
Commissario generale: Roberts Stafeckis (Ministero dell’Economia)
Produzione: Ģirts Majors, Linda Andersone, Andis Zusts (Positivus Event)
Direttore del padiglione: Elīna Vikmane
Direttore artistico del padiglione: Sigvards Kļava
Artisti: Rolands Pēterkops (MAREUNROL’S), Voldemārs Johansons, Roberts Rubīns, Anda Poikāne, Dainis Pundurs
Supervisione alla costruzione: Jānis Zolbergs (Forma2)
Visual identity: Design agency 'Brandbox', branch of McCann WoldGroup Riga
Area: 1.147 mq
