Lo stesso sistema viene duplicato nella camera da letto per ospitare i comodini e l’illuminazione integrata.
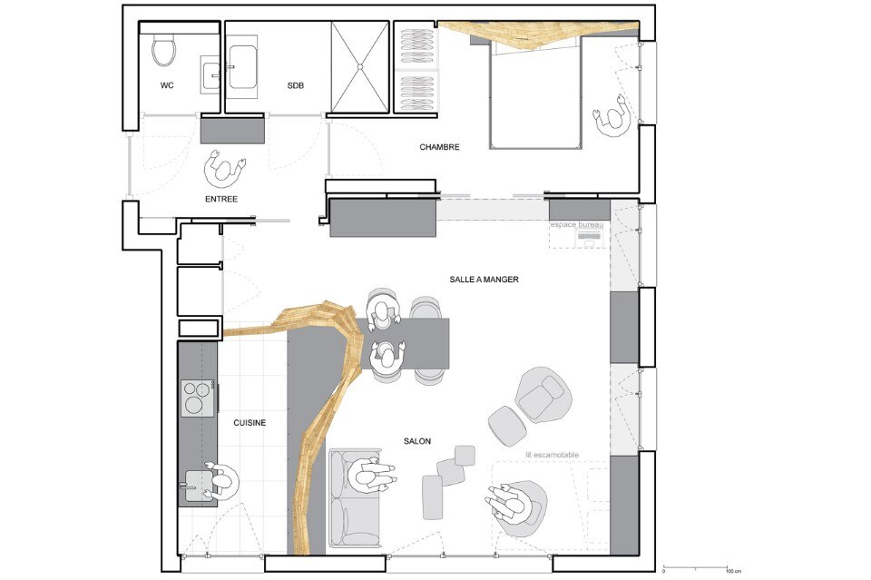
Lo spazio è inoltre massimizzato integrando gli armadi nelle pareti (tra cui un letto pieghevole e una scrivania). Un armadietto a tutta altezza, di nuovo su misura, movimenta lo spazio. “Questa tecnica permette di creare un materiale unico. Le scanalature millimetriche si rivelano in misura diversa durante la giornata a seconda del gioco di luci e ombre. Le linee grafiche alleggeriscono la massa dei mobili, rafforzando le grandi superfici bianche” spiega Coudamy.
Galleria
Woodwave, Parigi
Tipologia: appartamento
Architetto: Paul Coudamy
Area: 60 mq
Completamento: 2014
