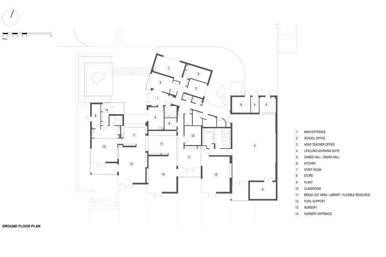
La forma dell’edificio rappresenta un’interpretazione dei volumi che compongono una fattoria, collegati e raggruppati insieme in una serie di nuclei che definisce e controlla il movimento attraverso e intorno al nuovo edificio scolastico.
Il progetto utilizza tetti spioventi simmetrici e sviluppi planimetrici semplici, di forma stretta e lunga, tipici della maggior parte delle località rurali, e facciate lisce, minimamente articolate con una prevalenza della massa muraria per integrare premurosamente la scuola nel suo ambiente e nel paesaggio. Le finiture esterne in legno, pietra e ardesia creano uno stile moderno e contemporaneo e offrono una finitura resistente, che richiede poca manutenzione, che riprende lo stile vernacolare.
Progettata per rispondere alle esigenze di sicurezza garantendo un ambiente accogliente, funzionale e sofisticato, la varietà di esperienze spaziali incoraggia e stimola l’interazione sociale ed educativo. Punti di accesso separati facilitano la protezione delle aree didattiche, che possono essere separatequando la sala viene utilizzata da parte della comunità.
Il disegno degli spazi di ingresso consente l’uso in comune della struttura come scuola e spazio per la comunità con accesso diretti e indipendenti, offrendo diverse opportunità per la popolazione, promuovendo l’inclusione sociale e creando un’emergenza per il quartiere.
Kirkmichael Primary School, Ayrshire
Tipologia: scuola elementare
Architetti: Holmes Miller
Committente: South Ayrshire Council
Impresa: Clark Contracts Ltd
Costo: £ 2.2 M
Completamento: 2014
