Gli arredi dello spazio per la consulenza – lampada, scrivania e divano – sono stati progettati per integrarsi con gli scaffali.
Lo spazio è dipinto in colore verde menta per ricordare il mondo della medicina erboristica. Il colore morbido e fresco è destinato a creare un’atmosfera curiosamente ambivalente grazie al contrasto con l’importanza degli arredi.
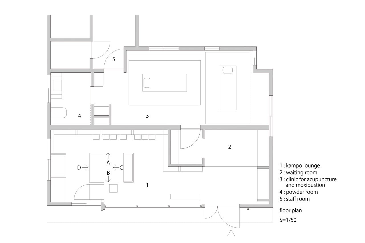
Al contrario, la clinica vera e propria è uno spazio tranquillo dipinto in bianco uniforme. I tendaggi pesanti e drappeggiati donano allo spazio un aspetto confortevole, nonostante si tratti di un luogo di cura.
Grazie al grande affaccio su strada, lo spazio è percepibile dall’esterno nella sua interezza, con la farmacia e la clinica separate dalla sala d’attesa.
Galleria
id, Sumiyoshido kampo lounge, clinica per agopuntura e moxibustione, Aichi, Giappone. Photo © id inc.
id, Sumiyoshido kampo lounge, clinica per agopuntura e moxibustione, Aichi, Giappone. Photo © id inc.
id, Sumiyoshido kampo lounge, clinica per agopuntura e moxibustione, Aichi, Giappone. Photo © id inc.
id, Sumiyoshido kampo lounge, clinica per agopuntura e moxibustione, Aichi, Giappone. Photo © id inc.
id, Sumiyoshido kampo lounge, clinica per agopuntura e moxibustione, Aichi, Giappone. Photo © id inc.
id, Sumiyoshido kampo lounge, clinica per agopuntura e moxibustione, Aichi, Giappone. Photo © id inc.
id, Sumiyoshido kampo lounge, clinica per agopuntura e moxibustione, Aichi, Giappone. Photo © id inc.
id, Sumiyoshido kampo lounge, clinica per agopuntura e moxibustione, Aichi, Giappone. Photo © id inc.
id, Sumiyoshido kampo lounge, clinica per agopuntura e moxibustione, Aichi, Giappone. Pianta
id, Sumiyoshido kampo lounge, clinica per agopuntura e moxibustione, Aichi, Giappone. Photo © id inc. Prospetti
Sumiyoshido kampo lounge, clinica per agopuntura e moxibustione, Aichi, Giappone
Tipologia: farmacia e clinica
Design: id inc.
Designer: Seiji Oguri, Yohei Oki
Completamento: settembre 2014
