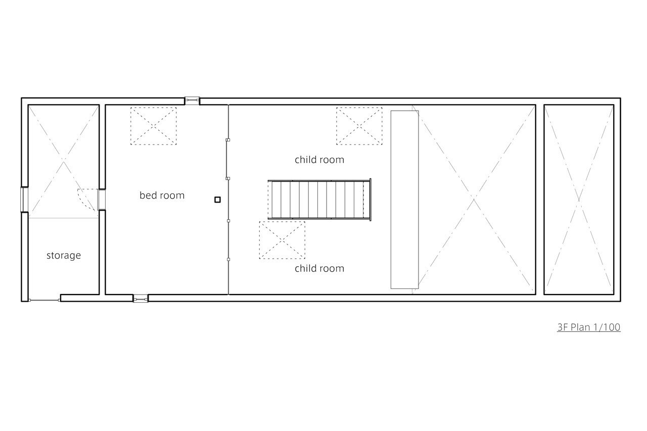
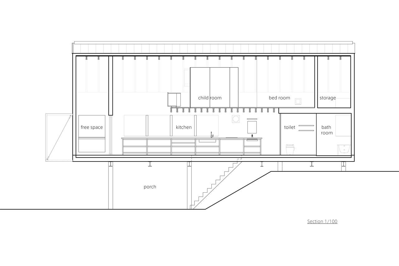
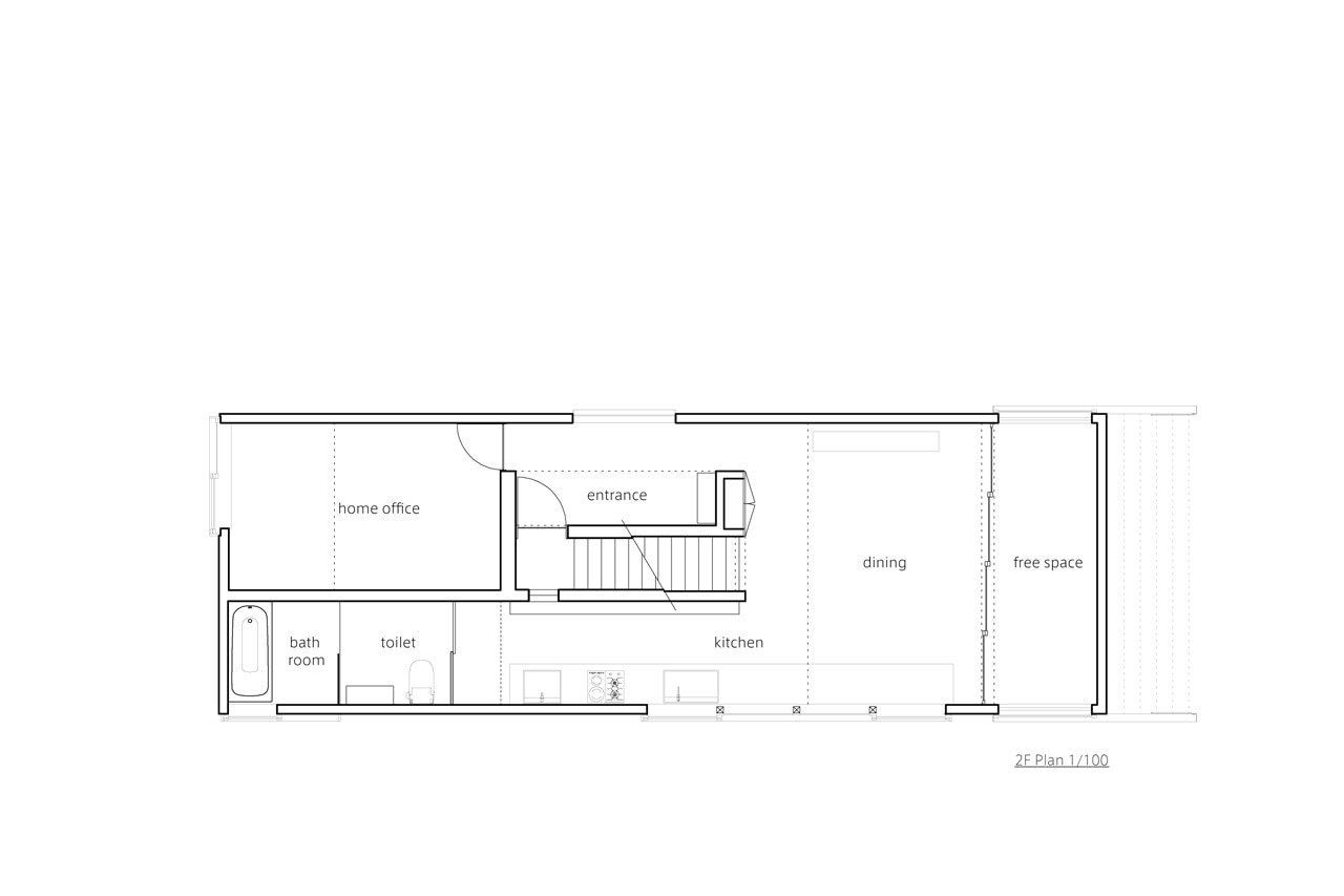
Elevando la casa su pilotis la vista può essere goduta da ogni stanza e lo spazio esterno può essere utilizzato come parco giochi per bambini e portico d'ingresso. La guida della finestra al secondo piano è a sbalzo per consentire il flusso del vento all’interno.
Il bancone della cucina è una lastra di cemento sottile su un telaio in legno, simile al tavolo di un fiorista.
Galleria
4n House, Ikoma, Nara, Giappone
Tipologia: casa unifamiliare
Architetti: ninkipen! (Yasuo Imazu)
Ingegneria strutturale: TAPS (Masaichi Taguchi)
Impresa: Kimura Koumuten
Area: 118,98 mq
Completamento: 2013
