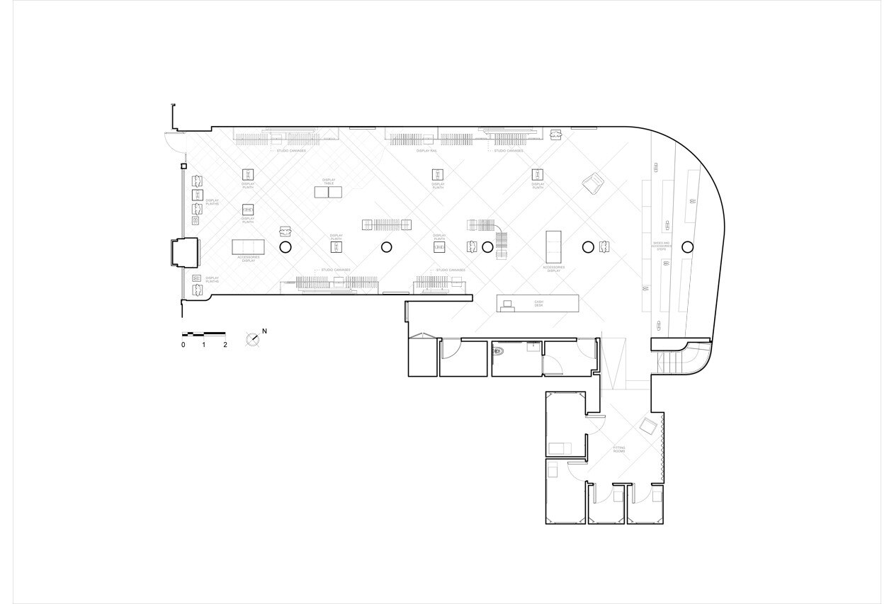
Le caratteristiche architettoniche principali includono una grande parete bianca e curva di compensato e ampi gradini di pietra che costeggiano il fronte posteriore del negozio. Illuminati con abbondante luce naturale dal lucernario superiore, i gradini mostrano scarpe e accessori, oltre a fornire una piattaforma per installazioni e performance. Un volume minimalista indipendente, inserito nella metà della lunghezza del negozio crea lo spazio per ospitare camerini.
Le grandi tele che rivestono le pareti della boutique sono ispirate al lavoro del celebre fotografo Bill Jacobson e alla sua recente serie di still-life minimalisti, in cui inserisce rettangoli di varie dimensioni in contesti diversi. Realizzata in materiali di costruzione standard, come MDF dipinto di nero e gesso, le tele sono pensate per apparire come disposte casualmente lungo il perimetro.
Le collezioni sono visualizzate su espositori progettati su misura, costituiti da guide in metallo con finitura color oro e Corian bianco, completati dai tavoli in marmo color menta. Le basi per gli accessori fanno un uso ludico di materiali utilitaristici con piastrelle standard accatastate e intervallate da pezzi di vetro, che aggiungono un tocco di blu.
L’uso non convenzionale di materiali misti è evidente anche nella pavimentazione, che utilizza calcare grigio e piastrelle di marmo Bahia blu all’ingresso. Le piastrelle sono disposte secondo un classico disegno a scacchiera, sovvertito dalla giustapposizione con il pavimento in calcestruzzo gettato che riveste il resto dello spazio. Strisce intarsiate in ottone proseguono qua e la il pattern a scacchiera.
3.1 Phillip Lim, 48 Great Jones Street, New York
Tipologia: flagship store
Design: Campaign
Design Team: Philip Handford, Steve Wynne, Dan Wilson
Architetti: OLA
Impresa: Fulton Landing Inc
Ingegneria degli impianti: Grant Engineering
Consulenza luci: ZeroLUX
Project management: 3.1 Phillip Lim
Area: 325 mq
