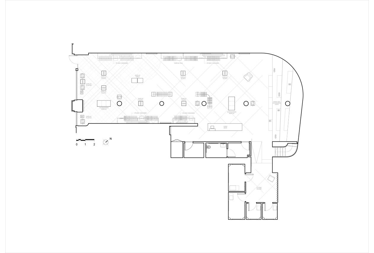
Key architectural features include a curving, white washed plywood wall and oversized stone steps along the back of the store. Lit with abundant natural light from the skylight above, the steps display shoes and accessories in addition to providing a platform for installations and performances. A freestanding minimalist architectural block, inserted into half the length of the store creates space to house fitting rooms.
Groups of large studio canvases which line the boutique walls are inspired by the work of renowned photographer Bill Jacobson and his recent series of minimal still-life images placing rectangles of various sizes in different settings. Made from standard construction materials including soft touch black MDF, multiply and unfinished plasterboard, the canvases are carefully curated to appear effortlessly and casually placed along the edges of the interior.
Collections are displayed on bespoke designed fittings echoing the casual elegance of the brand. Minimalist metal rails in champagne gold finish, and white Corian and mint-hued marble tables compliment the 3.1 Phillip Lim range. Plinths to display accessories make playful use of utilitarian materials with ordinary floor tiles stacked high, and interspersed with pieces of glass giving a glint of blue.
The unconventional and unexpected use of mixed materials is also evident in the flooring, which utilises grey limestone and exquisite blue Bahia marble tiles at the entrance for maximum drama. The tiles are arranged in a classic chequered pattern, the layout subverted by their juxtaposition to the poured concrete floor featured in the space beyond the entrance. Inlaid brass strips mark out the pattern and add a note of classical refinement.
3.1 Phillip Lim, 48 Great Jones Street, New York
Program: flagship store
Design: Campaign
Design Team: Philip Handford, Steve Wynne, Dan Wilson
Project Architect: OLA
Main contractor: Fulton Landing Inc
Services engineer: Grant Engineering
Lighting consultant: ZeroLUX
Project management: 3.1 Phillip Lim
Area: 325 sqm
