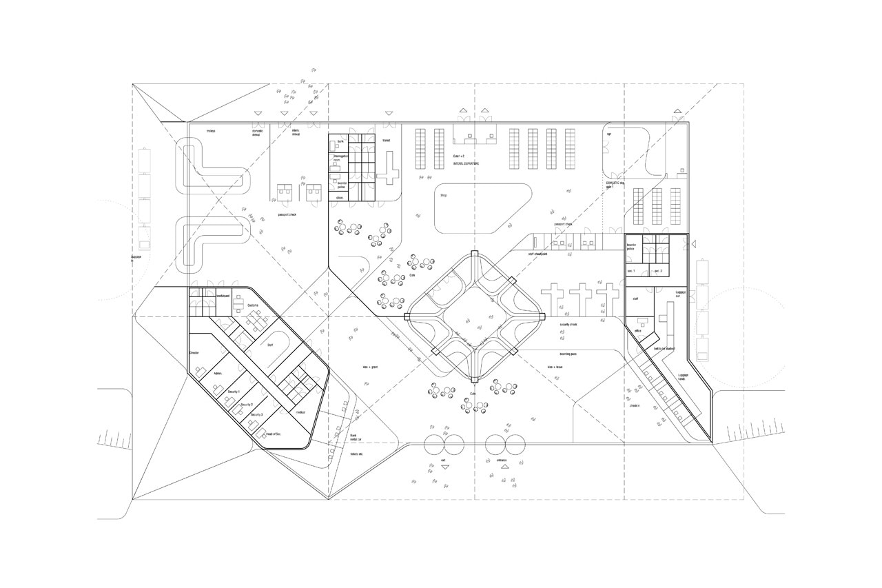
Numerosi gli accorgimenti adottati ai fini della sostenibilità ambientale. Un grande bacino idrico sotterraneo consente la riduzione dei consumi energetici attraverso l’attivazione termica della massa e l’uso dei bacini di irrigazione. I pavimenti utilizzeranno tale acqua per mantenere una temperatura regolata in due volumi. Nel terminal i tetti a sbalzo forniscono protezione solare sui fronti sud e sud-ovest. Un sistema di ventilazione ibrido a bassa pressione è integrato nella struttura principale, mentre sotto i pavimenti è stato installato un sistema di raccolta acque grigie.
Kutaisi King David the Builder International Airport, Kutaisi, Georgia
Tipologia: terminal aeroportuale, torre di controllo e uffici operativi
Committente: Sakaeronavigatsia Ltd.
Architetti: UNStudio
Area: 12.000 mq
Completamento: 2013
