Lo studio di architettura Q&A Architecture Design Research ha firmato gli interni del bar brasiliano Barraco utilizzando materiali riciclati, e porte e finestre prese da edifici demoliti a Shanghai. Il risultato è un’atmosfera informale e colorata che ricorda le città tropicali.
Galleria
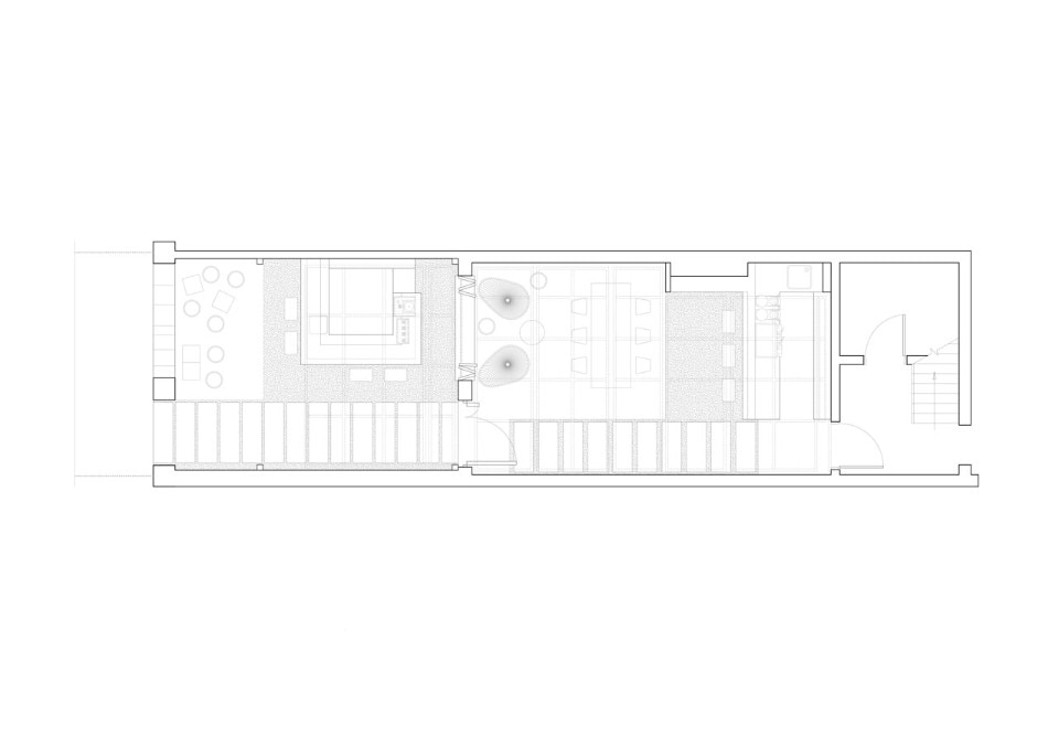
Barraco è stato costruito seguendo una griglia inclinata e irregolare. I toni neutri del cemento grezzo, il legno, la ghiaia a pavimento e a parete fanno da sfondo a un caos controllato di piante, luci e altalene sospese, visibili dalla strada. Quando è chiuso, la facciata frontale viene sbarrata da pannelli scorrevoli di legno che si muovono su binari di acciaio, in modo da formare una parete solida che mette in risalto il logo colorato all’ingresso.
La doppia natura dei materiali e delle superfici riflette quella dello spazio. Il bar, più tranquillo e dall’atmosfera tenue, offre uno spazio per il caffè pomeridiano, mentre il bar all’aperto, con un telo per le proiezioni, diventa parte integrante della movida di Shanghai. Le sedute sono organizzate seguendo lo stesso principio, con panche basse e sgabelli facili da spostare affiancati ad altalene disposte attorno al bancone. All’interno si trovano poltrone comode e sgabelli da bar posizionati attorno a un tavolo sospeso che può essere abbassato o alzato in base alle necessità.
- Progetto:
- Barraco
- Tipologia:
- Bar
- Architetti:
- Q&A Architecture Design Research
- Luogo:
- Shanghai
- Completamento:
- 2017
