Studio di progettazione: Maker Architecten
Nome del progetto: Urban infill project for social housing
Luogo: Kortrijk, Belgio
Dimensioni: 3685 sqm
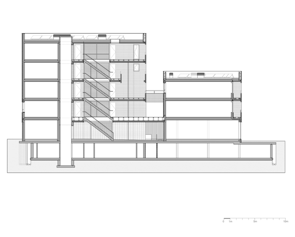
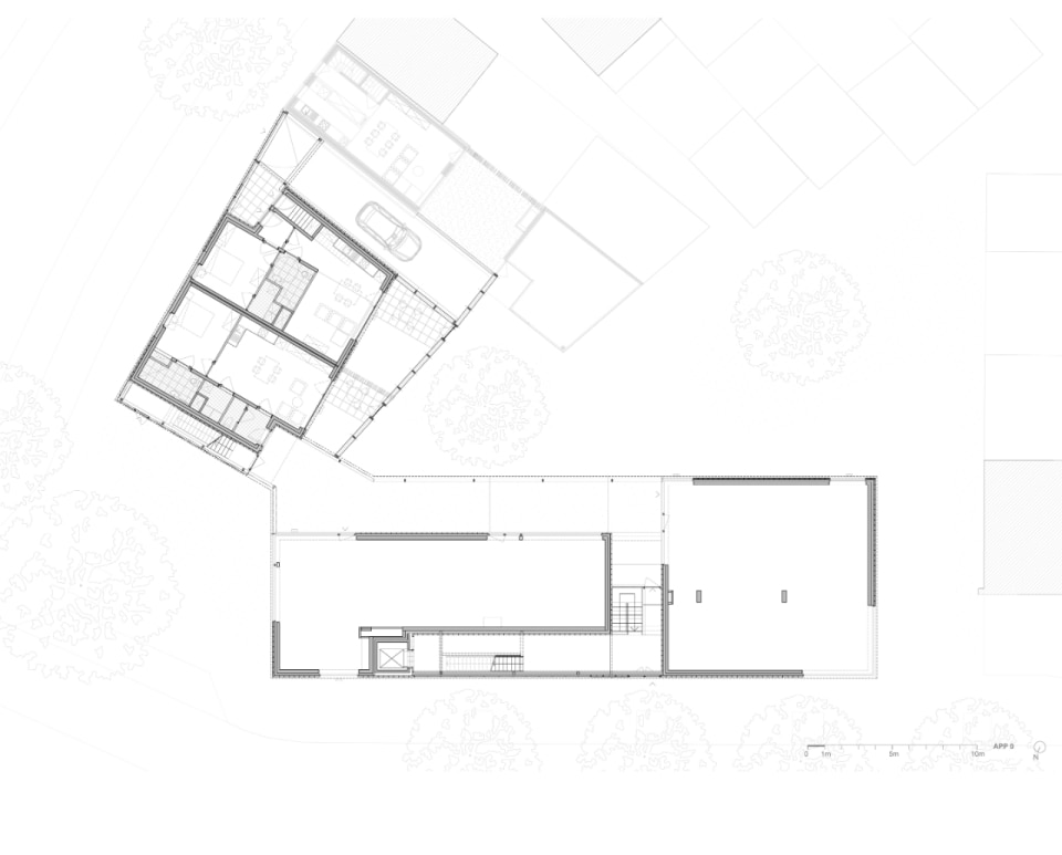
A Kortrijk, in un isolato compatto di edilizia a schiera, Maker Architecten ha realizzato un intervento di rigenerazione puntuale, senza tradire l'identità storica del comparto e secondo i principi dell’economia circolare. Il progetto si articola in una serie di operazioni mirate che portano alla creazione di 31 nuovi alloggi di edilizia sociale di diversa tipologia - dalla casa a schiera alla palazzina multipiano. Le nuove architetture dialogano con l’esistente sul piano materico e cromatico grazie a un accurato riuso selettivo dei laterizi storici provenienti dalle ristrutturazioni e reimpiegati come rivestimento o come riempimento dei gabbioni metallici che perimetrano la proprietà. Se la continuità con il passato guida il progetto, altrettanto centrale è l’attenzione al futuro: l’impiego di una malta ibrida consente, infatti, l’agevole disassemblaggio dei componenti, garantendone il possibile riutilizzo al termine del loro ciclo di vita.
