A Muskoka, in Ontario, Akb Architects ha realizzato un “buen retiro” per una famiglia alla ricerca di intimità e di un rapporto intenso con la bellezza selvaggia del paesaggio lacustre e boschivo della regione.
Concepita per impattare il meno possibile nel contesto da un punto di vista sia ecologico sia figurativo, l’abitazione combina le regole di un rigoroso impianto planivolumetrico con un’attitudine all’evanescenza, leggibile nella scelta di materiali e soluzioni compositive che sfumano i confini tra interno ed esterno e tra artificio e natura.
Concepita per impattare il meno possibile nel contesto, l’abitazione combina le regole di un rigoroso impianto planivolumetrico con un’attitudine all’evanescenza.
L’edificio si colloca su un’isola vicino alla riva di un lago e si ispira all’immagine consolidata dei pontili galleggianti della zona. Il volume, adagiato sul sito in pendenza, si sviluppa su due livelli ed è composto dall’aggregazione di superfici piane verticali ed orizzontali che si incontrano per comporre un involucro essenziale, squarciato da ampie vetrate e rivestito in doghe di pino bianco locale spazzolato con vernice nera.
Dalla riva, nelle ore diurne, l’edificio risulta solo vagamente percepibile grazie alle superfici traslucide e al rivestimento scuro che permette alla costruzione di dissolversi tra i colori del bosco; nelle ore serali, la fitta chioma degli alberi oscura parzialmente la vista della casa, garantendo all’architettura una presenza discreta anche quando illuminata.
Un ampio aggetto su tre lati della copertura piana – fino a 5 metri oltre la struttura portante del fabbricato – protegge i fronti e crea una zona di “interregno” tra dentro e fuori, una “fascia” perimetrale di terrazze e affacci sul bosco dove lo spazio domestico si dilata al di là delle pareti vetrate scorrevoli.
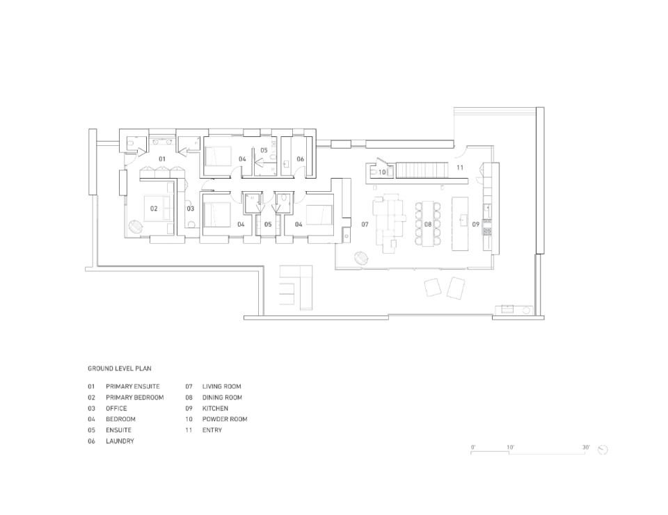
Spostandoci all'interno, al piano principale rialzato un layout chiaro e semplice divide in modo netto l’ambiente: a sud-est, la radiosa zona comune con cucina a vista, sala da pranzo e soggiorno, a nord-ovest la zona notte attraversata da un corridoio che distribuisce alle quattro camere, ai servizi e al piccolo ufficio. A rimarcare la ripartizione delle aree funzionali, una corposa parete in granito nero incide lo spazio, richiamando gli affioramenti rocciosi naturali della proprietà visibili dalle finestre a tutta altezza.
La sobria palette materica – legno, cemento, metallo e pietra – accentua il carattere raffinato degli ambienti attraverso un efficace gioco di opposti: dai pavimenti levigati in microcemento in contrasto con la ruvida matericità delle superfici lapidee, agli arredi dai toni morbidi in dialogo con le finiture scure di infissi e mobilio.
Un forte impegno alla sostenibilità ha guidato il progetto, attraverso la scelta di materiali di provenienza locale, l’impiego di pompe di calore geotermiche per il raffreddamento e riscaldamento, e tecniche di progettazione passiva mirate a favorire i flussi di ventilazione incrociata, attraverso le vetrate scorrevoli e allo sporto ombreggiante di copertura.
- Progetto:
- Sagamore North Cottage
- Progetto architettonico:
- Akb Architects
- Team di progetto:
- Kelly Buffey (direttore creativo), Robert Kastelic (direttore tecnico), Mark Ross e Shay Gibson (capi progetto)
- Interni:
- Akb Architects
- Paesaggio:
- Ron Holbrook and Associates + Rockscape Construction
- Costruttore:
- Tamarack North Construction Ltd.
