Volumi scarni ed essenziali, materiali schietti e durevoli, un dialogo appassionato con la natura: in questa casa di Equipo de Arquitectura ad Asunción, in Paraguay, si va alla ricerca dei principi del Brutalismo Tropicale, attualizzandoli alla luce di una sensibilità contemporanea per il benessere ambientale.
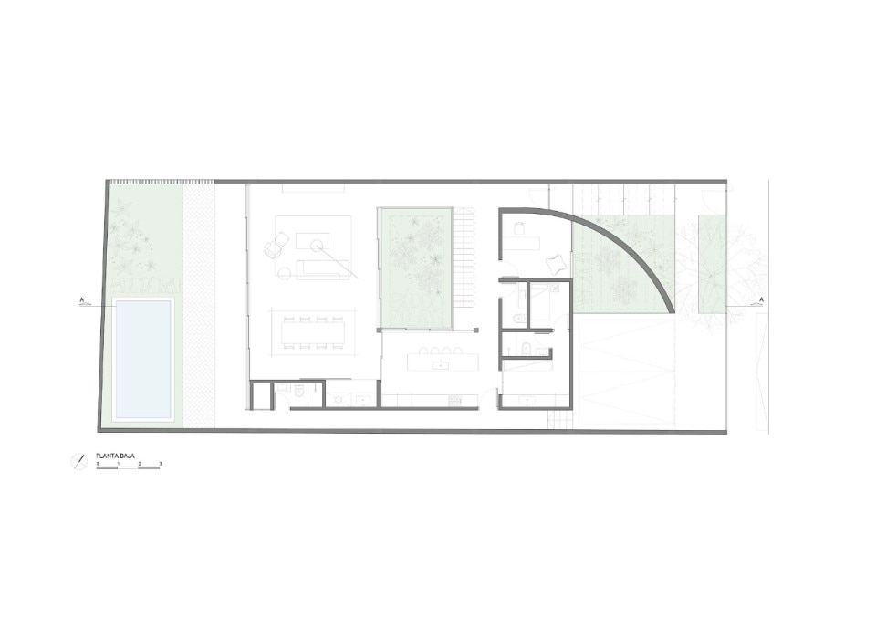
L’edificio si situa al centro di un tradizionale lotto di 12 x 30 metri nella capitale. L’impianto rettangolare semplice e funzionale, distribuito su due livelli, dispone al piano terra una sequenza di spazi fuidi comuni e, al piano superiore, gli ambienti privati (le tre camere da letto, i servizi, lo studio e la palestra).
Sulle orme di Paulo Mendes da Rocha e del suo rapporto entusiastico con la vegetazione, lo spazio architettonico si interfaccia incessantemente con la natura: nel giardino a sud-ovest, su cui prospettano gli ambienti principali, nella corte centrale a tutta altezza e in quella sulla testata nord-est, che introiettano luce naturale e favoriscono il raffrescamento grazie ai flussi di ventilazione incrociata. Sul fronte stradale, la gelosia in laterizio scherma la luce e tutela la privacy dell’abitazione, fungendo da supporto alle piante rampicanti che nel tempo diventeranno parte integrante dell’architettura.
Al piano superiore, la camera d’aria tra il soffitto in legno e il tetto in lamiera termoacustica consente di mitigare l'incidenza della radiazione solare nella casa.
Negli interni, la struttura portante perimetrale permette di liberare lo spazio da interruzioni visive. Una sinfonia di materiali sinceri e atemporali (dal mattone semicompresso delle pareti, al cemento di pavimenti e soffitti, al legno di arredi e finiture) conferisce agli ambienti un’aura ruvida e corposa, che saprà registrare con garbo la patina del tempo.
- Gruppo di progetto:
- Viviana Pozzoli, Horacio Cherniavsky, Gabriela Ocampos, Patricio Duarte, Gabriela Roura, Juan Corvalán
- Paesaggio:
- El Arenero
