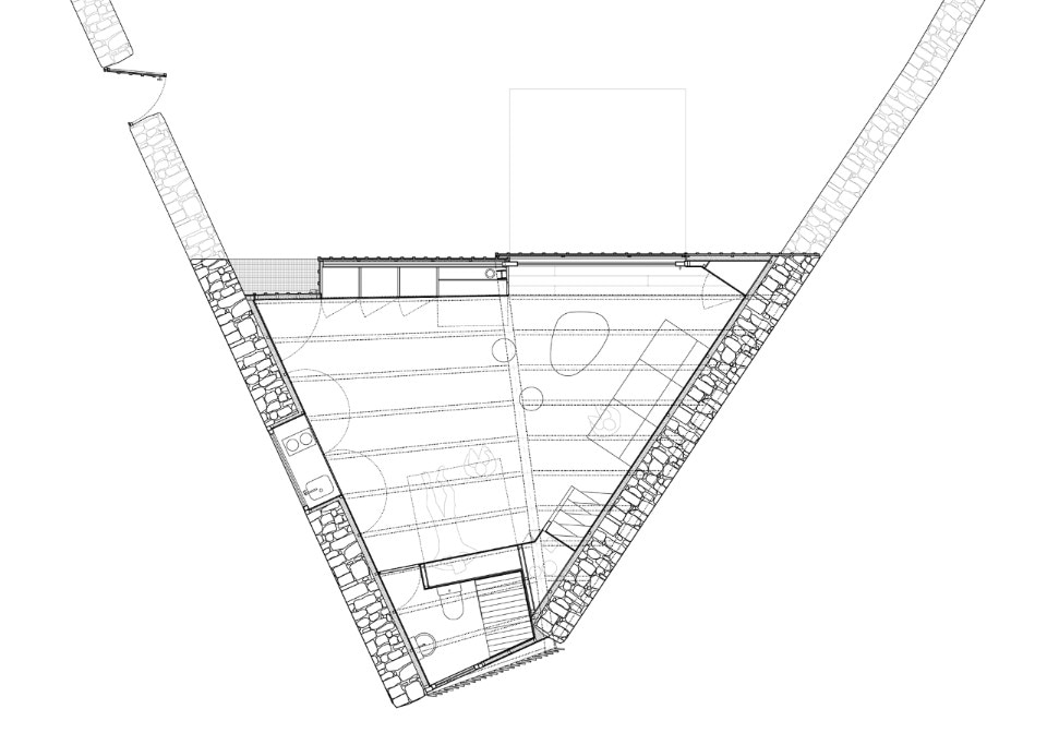
Nel villaggio di Ojacastro, lo studio MAAV ha trasformato un vecchio rudere in una piccola casa privata. L’abitazione segue una logica semplice: la creazione di un grande spazio unitario infrastrutturato da pareti attrezzate, mobili estraibili, elementi piegabili, letto a ribalta, angolo cottura a scomparsa, vani incassati nello spessore dei muri perimetrali; in sostanza, un grande pezzo d’arredo abitabile, nelle parole dei progettisti. La stanza si adatta facilmente quindi a diventare cucina, soggiorno, studio, camera, ibridando spazi e usi.
L’avanzato stato di degrado del rudere ha imposto la sostituzione della carpenteria in legno. Mentre sia il manto di copertura sia i due muri in pietra sono stati mantenuti e rinforzati. I muri, in particolare, giocano un ruolo fondamentale nel funzionamento di questa architettura e delle relazioni che genera, sia in termini materici che geometrici. Lo spazio compreso tra essi diventa un cortile, allo stesso tempo estensione della casa e zona di transizione. Un terzo muro in legno chiude l’abitazione ed è caratterizzato da un’ampia finestra, che garantisce una continuità tra dentro e fuori e all’occorrenza può essere oscurata da un’anta scorrevole.
L’intervento è il risultato di un percorso virtuoso che ha visto proprietà, progettisti e autorità rinunciare ai diritti edificatori garantiti dal piano urbanistico – secondo il quale si sarebbe potuto costruire fino a tre piani fuori terra - a favore di un intervento che si pone in continuità critica con le presenze storiche del fragile contesto rurale. Il progetto evita gli scivolosi terreni del mimetismo e dello storicismo, per affrontare con pragmatica sobrietà il tema tettonico, ed il relativo carattere figurativo.
Il recupero della sagoma del rudere e di tutte le parti salvabili, così come la sostituzione di componenti ammalorati, compromessi, o obsoleti, oppure l’inserimento di aperture funzionali ai requisiti aeroilluminanti, vanno in questa direzione ed esibiscono una rivisitazione contemporanea del complesso rapporto tra architettura e rovina. Instaurano, inoltre, una relazione dialettica con l’intorno, ovvero quel sistema di tracce e segni che contraddistingue ogni regione civile dalle selvagge per il fatto, usando le parole di Carlo Cattaneo, di essere un immenso deposito di fatiche.
