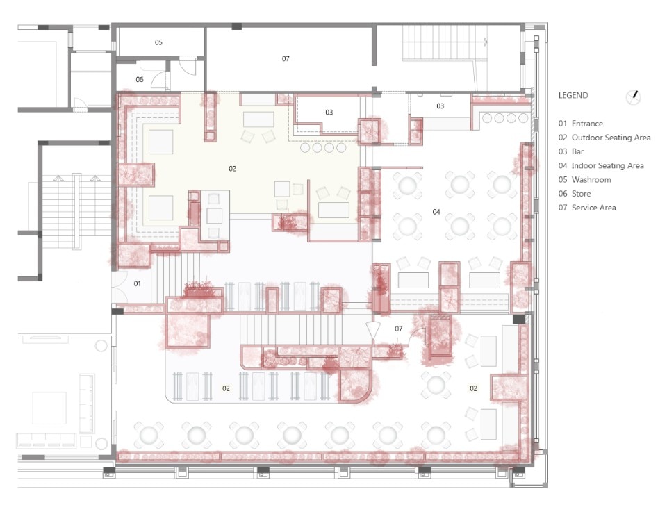
Situato a Moradabad e progettato da Portal 92 Architects, The Village Cafe riflette sul significato e sulle diverse interpretazioni dei piccoli insediamenti indiani. Su una superficie di 600 metri quadrati, il rapporto tra spazio interno ed esterno ricorda gli insediamenti rurali, dando al visitatore la possibilità di trovare il proprio percorso tra i volumi collegati da scale. La composizione architettonica produce un senso di movimento e i diversi livelli offrono aree di seduta esterne e un bar ombreggiato.
Le pareti sono rivestite da intonaci sui toni della terracotta, mentre il pavimento della corte centrale è costituito da lastre rotte di pietra locale di Kadappa, nera e grezza. Cerchi di cemento punteggiano le pareti e offrono una vista sulle piante che circondano i volumi. Una struttura vetrata completa la struttura del The Village Cafe: cemento bianco e lampade a sospensione creano un leggero contrasto con l’esterno, ma mantenendo sempre un legame con esso attraverso forme e geometrie.
- Progetto:
- The Village Cafe
- Architetti:
- Portal 92
- Design team:
- Aanchal Sawhney, Sagar Goyal, Praneet Singh, Varsha Rath, Astha Verma
- Dove:
- Moradabad, Uttar Pradesh, India
