Ogni tre anni, il Premio Aga Khan per l’Architettura fa conoscere al mondo opere in grado di coniugare qualità architettonica, impatto sociale e culturale. Nato nel 1977 per volontà del Principe Karim Aga Khan IV, il premio si concentra sul ruolo degli edifici come agenti di cambiamento per le comunità del mondo musulmano, che siano d’ispirazione a livello globale. La 17esima edizione conferma questa visione, premiando interventi che spaziano dalle abitazioni modulari per sfollati climatici alle riqualificazioni urbane, dalle scuole di inclusione sociale ai centri culturali che rafforzano identità e tradizioni locali.
“L’architettura può – e deve – essere un catalizzatore di speranza, plasmando non solo gli spazi che abitiamo, ma anche i futuri che immaginiamo.” ha dichiarato Farrokh Derakhshani, Direttore del Premio Aga Khan per l’Architettura. Quest’anno, i vincitori sono sette progetti diversi per tipologia, collocazione geografica, gruppo di progettazione.
Tra i nomi noti c’è Marina Tabassum, con il suo studio tra i più attivi nell’ambito delle emergenze climatiche e sociali, scelto quest’anno per progettare anche il Serpentine Pavilion 2025 di Londra. Tabassum aveva già vinto il premio nel 2016, con la moschea di mattoni rossi Bait Ur Rouf, un altro progetto in Bangladesh, suo paese d’origine. Quest’anno è la volta dei Khudi Bari, piccole abitazioni mobili in bambù e acciaio per comunità colpite da inondazioni e migrazioni forzate in diverse località del paese.
In Cina, il West Wusutu Village Community Centre di Hohhot riunisce abitanti e artisti attorno a un edificio costruito con mattoni di recupero, riciclati da demolizioni locali, una pratica molto diffusa nel paese, come mostrano i progetti del Premio Pritzker Liu Jiakun. Ci sono poi un centro educativo per ragazzi svantaggiati in Pakistan, la riqualificazione di un intero centro storico in Egitto, e uno spazio espositivo e produttivo in Palestina, progettato da Aau Anastas, che in quello stesso edificio ha avviato un programma per coinvolgere artigiani e designer.
L’architettura può e deve essere un catalizzatore di speranza.
Farrokh Derakhshani, Direttore del Premio Aga Khan per l’Architettura
Infine, due premi vanno all’Iran, con il Majara Residence nell’isola di Hormuz, un colorato complesso di cupole che riflette i terreni ocra locali e apre a un turismo sostenibile, e la Piazza della Metro Jahad a Teheran, una stazione fatiscente ripensata come monumento urbano rivestito di mattoni artigianali, in memoria della tradizione costruttiva persiana.
Khudi Bari, Bangladesh
View gallery
MTA residence at Modhu Chhara Hub
© Aga Khan Trust for Culture / City Syntax (F. M. Faruque Abdullah Shawon, H. M. Fozla Rabby Apurbo)
MTA residence at Modhu Chhara Hub
© Aga Khan Trust for Culture / City Syntax (F. M. Faruque Abdullah Shawon, H. M. Fozla Rabby Apurbo)
Women Friendly Space
© Aga Khan Trust for Culture / City Syntax (F. M. Faruque Abdullah Shawon, H. M. Fozla Rabby Apurbo)
Khudi Bari in Char Juan Satra
© Aga Khan Trust for Culture / City Syntax (F. M. Faruque Abdullah Shawon, H. M. Fozla Rabby Apurbo)
Khudi Bari in Char Shildoho
© Aga Khan Trust for Culture / City Syntax (F. M. Faruque Abdullah Shawon, H. M. Fozla Rabby Apurbo)
Khudi Bari in Char Juan Satra
© Aga Khan Trust for Culture / City Syntax (F. M. Faruque Abdullah Shawon, H. M. Fozla Rabby Apurbo)
Khudi Bari in Char Shildoho
© Aga Khan Trust for Culture / City Syntax (F. M. Faruque Abdullah Shawon, H. M. Fozla Rabby Apurbo)
Marina Tabassum Architects (MTA), Khudi Bari, various locations, Bangladesh, 2020-2023
© Marina Tabassum Architects
MTA residence at Modhu Chhara Hub
© Aga Khan Trust for Culture / City Syntax (F. M. Faruque Abdullah Shawon, H. M. Fozla Rabby Apurbo)
MTA residence at Modhu Chhara Hub
© Aga Khan Trust for Culture / City Syntax (F. M. Faruque Abdullah Shawon, H. M. Fozla Rabby Apurbo)
Women Friendly Space
© Aga Khan Trust for Culture / City Syntax (F. M. Faruque Abdullah Shawon, H. M. Fozla Rabby Apurbo)
Khudi Bari in Char Juan Satra
© Aga Khan Trust for Culture / City Syntax (F. M. Faruque Abdullah Shawon, H. M. Fozla Rabby Apurbo)
Khudi Bari in Char Shildoho
© Aga Khan Trust for Culture / City Syntax (F. M. Faruque Abdullah Shawon, H. M. Fozla Rabby Apurbo)
Khudi Bari in Char Juan Satra
© Aga Khan Trust for Culture / City Syntax (F. M. Faruque Abdullah Shawon, H. M. Fozla Rabby Apurbo)
Khudi Bari in Char Shildoho
© Aga Khan Trust for Culture / City Syntax (F. M. Faruque Abdullah Shawon, H. M. Fozla Rabby Apurbo)
Marina Tabassum Architects (MTA), Khudi Bari, various locations, Bangladesh, 2020-2023
© Marina Tabassum Architects
Il progetto comunitario di Marina Tabassum Architects risponde a una delle urgenze più drammatiche del Paese: gli sfollamenti dovuti alle inondazioni e al cambiamento climatico. Khudi Bari è una casa leggera ma resistente, composta da una struttura modulare in bambù e connettori d’acciaio, facile da smontare e rimontare da sole tre persone con strumenti di base. Il design prevede due livelli: quello inferiore dedicato alla vita sociale e privata, quello superiore destinato al riposo e pensato come rifugio in caso di alluvione. Un aspetto molto rilevante del progetto è la sua adattabilità in diversi contesti: le facciate sono state pensate per essere realizzate con materiali reperiti localmente, diversi in base alla disponibilità.
West Wusutu Village Community Centre, Cina
View gallery
Inner Mongolian Grand Architecture Design Co., West Wusutu Village Community Centre Hohhot, Inner Mongolia, China, 2023
© Zhang Wenjun / Zhao Zhen
Inner Mongolian Grand Architecture Design Co., West Wusutu Village Community Centre Hohhot, Inner Mongolia, China, 2023
© Zhang Wenjun / Zhao Zhen
A Hohhot, in Mongolia, sorge un centro che intreccia funzioni sociali, culturali e religiose per una comunità rurale. Con i suoi 1.276 mq, è organizzato attorno a una corte circolare centrale che funge da piazza per attività collettive, con un ampio tetto praticabile di 786 mq. Il West Wusutu Village Community Centre è costruito interamente con mattoni riciclati da demolizioni locali, e integra soluzioni sostenibili come torri di ventilazione e lucernari automatizzati, che garantiscono comfort naturale ed efficienza energetica. Il risultato è un luogo inclusivo che ricuce i legami comunitari e diventa punto di riferimento per gli Hui musulmani, lontani dalla loro moschea principale.
Vision Pakistan, Pakistan
View gallery
DB Studios, Vision Pakistan, Islamabad, Pakistan, 2023
© Aga Khan Trust for Culture / Usman Saqib Zuberi (photographer)
DB Studios, Vision Pakistan, Islamabad, Pakistan, 2023
© Aga Khan Trust for Culture / Usman Saqib Zuberi (photographer)
DB Studios, Vision Pakistan, Islamabad, Pakistan, 2023
© Aga Khan Trust for Culture / Usman Saqib Zuberi (photographer)
DB Studios, Vision Pakistan, Islamabad, Pakistan, 2023
© Aga Khan Trust for Culture / Usman Saqib Zuberi (photographer)
DB Studios, Vision Pakistan, Islamabad, Pakistan, 2023
© Aga Khan Trust for Culture / Usman Saqib Zuberi (photographer)
DB Studios, Vision Pakistan, Islamabad, Pakistan, 2023
© Aga Khan Trust for Culture / Usman Saqib Zuberi (photographer)
DB Studios, Vision Pakistan, Islamabad, Pakistan, 2023
© Aga Khan Trust for Culture / Usman Saqib Zuberi (photographer)
DB Studios, Vision Pakistan, Islamabad, Pakistan, 2023
© Aga Khan Trust for Culture / Usman Saqib Zuberi (photographer)
DB Studios, Vision Pakistan, Islamabad, Pakistan, 2023
© Aga Khan Trust for Culture / Usman Saqib Zuberi (photographer)
DB Studios, Vision Pakistan, Islamabad, Pakistan, 2023
© Aga Khan Trust for Culture / Usman Saqib Zuberi (photographer)
DB Studios, Vision Pakistan, Islamabad, Pakistan, 2023
© Aga Khan Trust for Culture / Usman Saqib Zuberi (photographer)
DB Studios, Vision Pakistan, Islamabad, Pakistan, 2023
© Aga Khan Trust for Culture / Usman Saqib Zuberi (photographer)
DB Studios, Vision Pakistan, Islamabad, Pakistan, 2023
© Aga Khan Trust for Culture / Usman Saqib Zuberi (photographer)
DB Studios, Vision Pakistan, Islamabad, Pakistan, 2023
© Aga Khan Trust for Culture / Usman Saqib Zuberi (photographer)
DB Studios, Vision Pakistan, Islamabad, Pakistan, 2023
© Aga Khan Trust for Culture / Usman Saqib Zuberi (photographer)
DB Studios, Vision Pakistan, Islamabad, Pakistan, 2023
© Aga Khan Trust for Culture / Usman Saqib Zuberi (photographer)
Il centro Vision Pakistan di DB Studios è un progetto sociale nato per offrire una seconda possibilità a giovani svantaggiati. La struttura accoglie attualmente circa 50 studenti tra i 16 e i 25 anni, che seguono un anno di formazione come sarti, per l’integrazione all’interno della società e l’alfabetizzazione. L’edificio, con aule flessibili, spazi ricreativi e un atrio centrale illuminato dalla luce naturale, integra un giardino pensile coltivato dagli studenti. Le facciate in calcestruzzo grezzo sono animate da schermature traforate in metallo colorato (jaali), ispirate all’artigianato pakistano e arabo.
Rivitalizzazione di Esna, Egitto
View gallery
Takween Integrated Community Development, Revitalisation of Historic Esna Esna, Egypt, 2018-ongoing
© 2021 Takween ICD / Ahmed Mostafa
Takween Integrated Community Development, Revitalisation of Historic Esna Esna, Egypt, 2018-ongoing
© 2024 Takween ICD / Ahmed Mostafa
Takween Integrated Community Development, Revitalisation of Historic Esna Esna, Egypt, 2018-ongoing
© 2024 Takween ICD / Ahmed Mostafa
Takween Integrated Community Development, Revitalisation of Historic Esna Esna, Egypt, 2018-ongoing
© 2021 Takween ICD / Ahmed Mostafa
Takween Integrated Community Development, Revitalisation of Historic Esna Esna, Egypt, 2018-ongoing
© 2021 Takween ICD / Ahmed Mostafa
Takween Integrated Community Development, Revitalisation of Historic Esna Esna, Egypt, 2018-ongoing
© 2024 Takween ICD / Ahmed Mostafa
Takween Integrated Community Development, Revitalisation of Historic Esna Esna, Egypt, 2018-ongoing
© 2024 Takween ICD / Ahmed Mostafa
Takween Integrated Community Development, Revitalisation of Historic Esna Esna, Egypt, 2018-ongoing
© 2021 Takween ICD / Ahmed Mostafa
Questa volta si tratta di un progetto che ha l’obiettivo di rendere nuovamente attrattivo un intero centro storico. Nell’Alto Egitto, la città di Esna era nota solo per il Tempio di Khnum. Il progetto guidato da Takween / Kareem Ibrahim, ancora in corso, intende trasformarla in un polo vivo di turismo culturale. Gli interventi hanno riguardato la conservazione e il riuso di diversi edifici e monumenti, come la Wakalat al-Geddawi del XVIII secolo, il mercato Qisariyya e la Guesthouse reale ottocentesca, oltre alla riabilitazione di 15 siti storici, con il recupero di tecniche tradizionali e materiali locali.
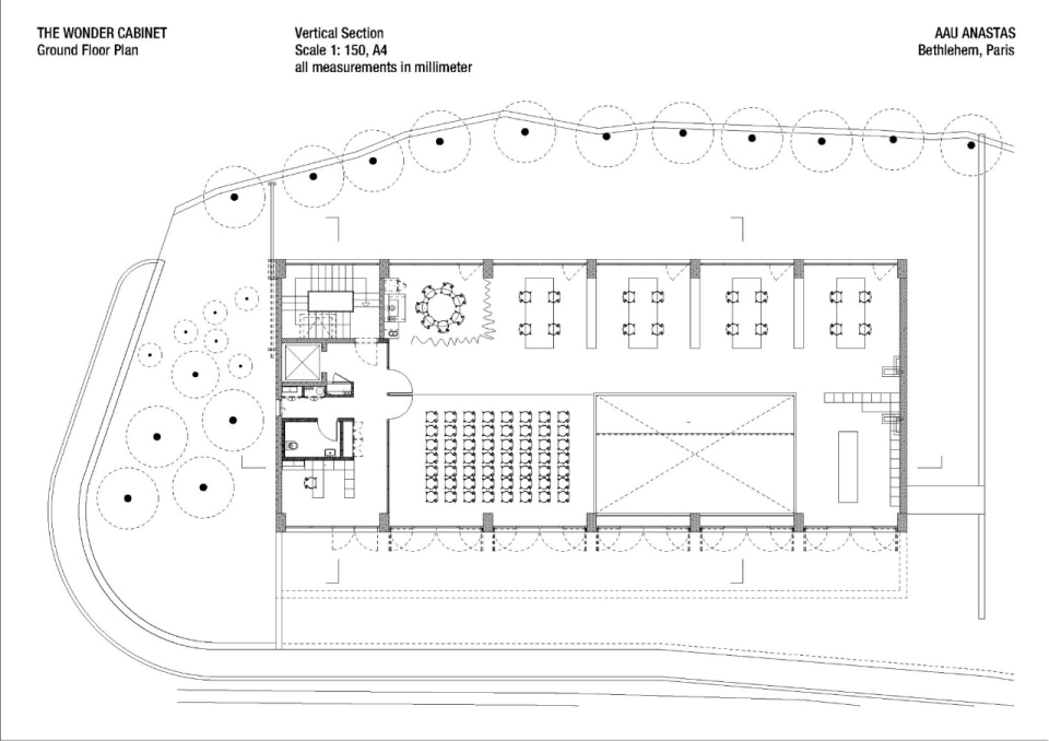
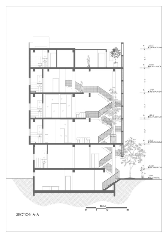
Wonder Cabinet, Palestina
View gallery
A Betlemme, affacciato sulla valle di Al-Karkafeh, il Wonder Cabinet è un edificio di tre piani dedicato alla creatività e alla produzione artigianale. Pensato come spazio no-profit, integra laboratori, uffici, caffè, ristorante e un’area performance nel seminterrato. La sua architettura privilegia la trasparenza: partizioni vetrate mettono in comunicazione funzioni diverse, mentre un vuoto centrale collega i livelli e accompagna lo sguardo verso il paesaggio esterno. Artigiani locali hanno contribuito agli arredi e alle finiture, rendendo l’edificio un manifesto della produzione culturale palestinese come forma di resistenza e autoaffermazione.
Majara Complex, Iran
View gallery
Sull’isola di Hormuz, chiamata “arcobaleno” per i suoi terreni variopinti, il progetto Majara Residence and Community Redevelopment ha dato vita a un arcipelago di cupole che ospitano residenze, spazi comunitari e centri culturali. Sono circa 200 le cupole, ispirate alle tradizionali cisterne per l’acqua, realizzate con materiali locali e disposte organicamente per riflettere il paesaggio. Il complesso progettato da ZAV Architetti / Mohamadreza Ghodousi ospita una biblioteca, laboratori di artigianato, spazi di culto, in un luogo segnato da conflitti e marginalità in cui l’intervento mira a creare nuove opportunità economiche e sociali.
Jahad Metro Plaza, Iran
View gallery
Il secondo progetto premiato in Iran si trova a Teheran, e sorge sulle ceneri di quella che, fino a poco tempo fa, era solo la piazza di una stazione della metro degradata. KA Architecture Studio ha trasformato questo spazio ostile in una piazza urbana, costruendo una copertura di volte in mattoni fatti a mano, tipici della tradizione persiana. La struttura, permeabile a luce e aria, mitiga il rumore del traffico e crea un ambiente raccolto e vivibile: un intervento a budget limitato ma a grande impatto urbano.
