La biblioteca multimediale del museo Quai Branly di Parigi è stata ristrutturata dallo studio parigino LAPS Architecture. Salvator-John A. Liotta e Fabienne Louyot hanno ripensato gli spazi museali tramite il concetto di “dematerializzazione selettiva”: materialità del legno, trasparenza e intimità sono gli elementi attorno a cui ruota la riorganizzazione di un’area di circa 1.000 mq. Il progetto non ripensa solo il layout dello spazio, ma anche la sua identità visiva, l’ergonomia e la funzionalità degli arredi.
Galleria
Médiathèque - Musée du Quai Branly - 2018 - Laps Architecture
Médiathèque - Musée du Quai Branly - 2018 - Laps Architecture
Médiathèque - Musée du Quai Branly - 2018 - Laps Architecture
Médiathèque - Musée du Quai Branly - 2018 - Laps Architecture
Médiathèque - Musée du Quai Branly - 2018 - Laps Architecture
Médiathèque - Musée du Quai Branly - 2018 - Laps Architecture
Médiathèque - Musée du Quai Branly - 2018 - Laps Architecture
Médiathèque - Musée du Quai Branly - 2018 - Laps Architecture
Médiathèque - Musée du Quai Branly - 2018 - Laps Architecture
Médiathèque - Musée du Quai Branly - 2018 - Laps Architecture
Médiathèque - Musée du Quai Branly - 2018 - Laps Architecture
Médiathèque - Musée du Quai Branly - 2018 - Laps Architecture
Médiathèque - Musée du Quai Branly - 2018 - Laps Architecture
Médiathèque - Musée du Quai Branly - 2018 - Laps Architecture
Médiathèque - Musée du Quai Branly - 2018 - Laps Architecture
Médiathèque - Musée du Quai Branly - 2018 - Laps Architecture
Médiathèque - Musée du Quai Branly - 2018 - Laps Architecture
LAPS-QBY-PRO-DET-A2.psd
LAPS-QBY-PRO-DET-A1.psd
LAPS-QBY-PRO-DET-P2.psd
LAPS-QBY-PRO-DET-F1.psd
LAPS-QBY-PRO-DET-M2.psd
LAPS-QBY-PRO-DET-M1.psd
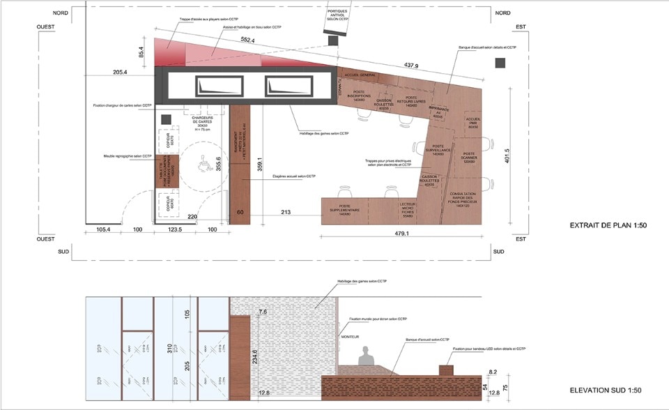
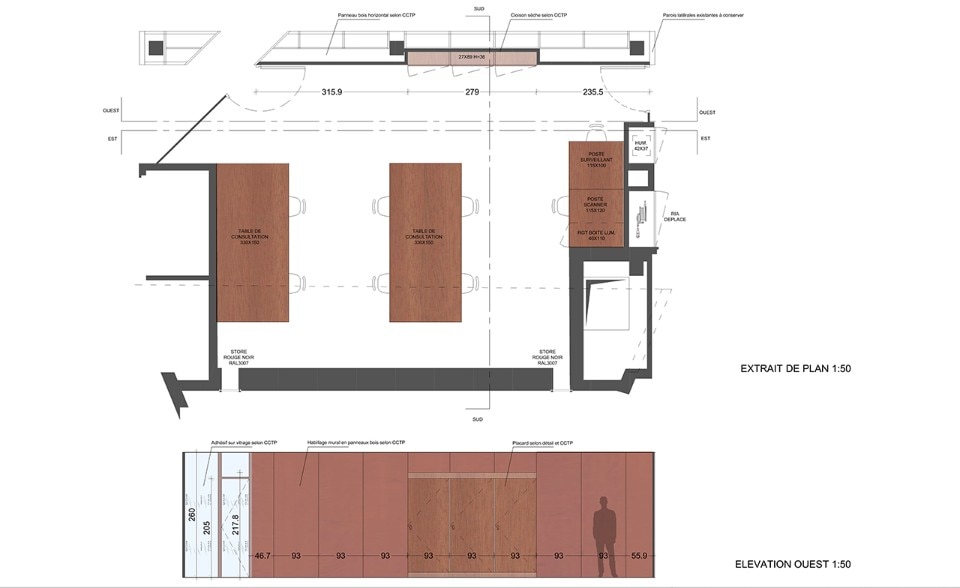
La dematerializzazione selettiva consente di lasciar intravedere l’interno degli spazi preservandone l’intimità. Il concept è inoltre coerente con il museo esistente, con l’utilizzo del legno di amaranto, già presente nel progetto originale di Jean Nouvel. La nuova mediateca comprende cinque aree: atrio d’ingresso, sala riviste, area per consultazione dei contenuti multimediali, archivi, spazi per lo studio individuali e collettivi. L’idea generale è che l’intera biblioteca non è dedicata solo alla lettura e alla consultazione, ma è un luogo di incontro e di scambio.
- Progetto:
- Mediateca del Museo di Quai Branly
- Architetto:
- Laps Architecture – Salvator-John A. Liotta e Fabienne Louyot
- Luogo:
- Parigi
- Area:
- 1.000 mq
- Completamento:
- 2018
