La residenza privata 'no.7' di FLXBL ad Ahmedabad, in India, è stata progettata per una famiglia di quattro persone, nonostante ciò che la sua superficie - di quasi 800 mq - suggerisce. Il trattamento delle facciate in calcestruzzo, così come il tetto, sono modellati in base all'esposizione al sole.
Galleria
Private Residence No .07 . Plans . FF_harsh
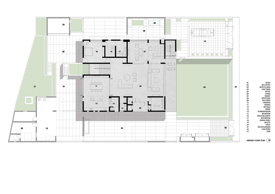
Private Residence No .07 . Plans . GF_harsh
Le torsioni di cemento testurizzato scavano il volume monolitico dell'edificio. Il risultato è un arrangiamento di facciate di vari spessori: mentre i prospetti a sud e ovest sono superfici solide che impediscono al calore di entrare nell'edificio, lo spessore delle facciate nord e sud è modellato da vuoti che ottimizzano luce e ventilazione.
La casa si sviluppa su due piani dove gli interni sono caratterizzati da un ricco mix di legni e una pavimentazione lucida di marmo scuro. Il piano terra è dedicato principalmente alla vita diurna della famiglia e vi si accede dal lato est. In questo piano si trovano un ampio soggiorno, la zona pranzo verso sud, un soggiorno rivolto a ovest. Il piano superiore ospita le camere da letto, ampie cabine armadio e una grande sala per l’intrattenimento esposta a nord: tutti questi spazi sono organizzati attorno a un cortile centrale piantumato con verde locale.
- Progetto:
- private residence no.7
- Programma:
- residenziale
- Luogo:
- Ahmedabad, India
- Architetti:
- FLXBL Design Consultancy
- Capo progetto:
- Cunal Parmar
- Team di progetto:
- Lalit Panchal, Shail Patel
- Area :
- 800 mq
- Completamento:
- 2018
