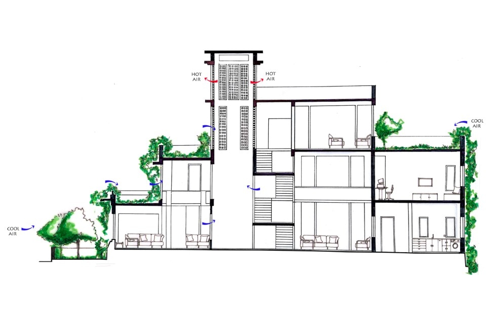
La casa è stata progettata attraverso un processo di progettazione olistica. Non riprende solamente i principi climatici delle abitazioni tradizionali, ma ne interpreta anche i modelli sociali. Amalgama tecnologie moderne e ideologie antiche. Con la rapida scomparsa del patrimonio architettonico indiano, è diventato cruciale rivivere e reinterpretare questi sistemi architettonici e tecnici, facendoli confrontare con le esigenze contemporanee. L’India con il suo ricco patrimonio architettonico offre una grande lezione sull’evoluzione dei suoi spazi fisici; questo è servito come punto di partenza per sviluppare il progetto della Casa del minareto.
Casa del minareto, Noida, India
Tipologia: casa unifamiliare
Architetto: Chaukor studio
Team di progetto: Nilesh Bansal, Tejeshwi Bansal, Manisha Nimesh, Tarini Sharma, Gauri Prakash
Struttura: EBI India
Acustica: Edge Acoustics
Automazione: Smartbus
Superficie: 743 mq
Completamento: 2017
