Il progetto di LDA_iMdA intende riattivare e sviluppare, attraverso il recupero e l’integrazione di un vecchio presidio già adibito a orfanotrofio, una porzione di territorio a ridosso del centro storico collinare di una cittadina di origine medievali. Il progetto prova a creare un legame con il bosco adiacente, attraverso lo studio del colore e delle sfumature nelle diverse stagioni. La facciata ne raccoglie la valenza cromatica sotto una lettura contemporanea.
Galleria
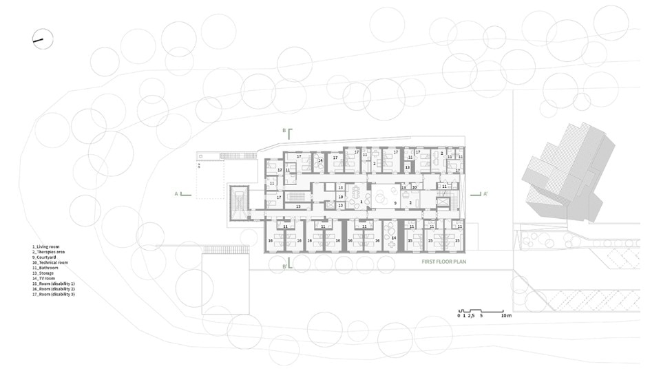
L’idea matrice dell’impianto è quella di salvaguardare nei materiali e nelle forme, come evidenziato dalle geometrie delle coperture, l’impianto originario e sottolineare l’ampliamento con forme e materiali maggiormente legati alla cultura contemporanea. La consapevolezza di intervenire in un luogo “fragile” da un punto di vista paesaggistico è stata di aiuto: la scelta del colore verde, non uniforme, del secondo livello della facciata indaga sulla possibilità di inserire e attenuare il nuovo volume nel contesto. La facciata ventilata non ha solo una valenza cromatica, ma propone più attimi di lettura: il doppio livello microforato dei singoli pannelli le conferisce un carattere diafano se osservata da vicino e massivo se osservata da lontano. Il filtro e le bucature sulla facciata principale esaltano il rapporto interno esterno: la luce naturale filtrata genera ambienti interni quieti e rilassati; i moduli di facciata creano due cannocchiali ottici che proiettano lo sguardo verso gli elementi forti del paesaggio.
- Progetto:
- Casa Verde
- Luogo:
- San Miniato
- Tipologia:
- casa di cura
- Architetto:
- LDA.iMdA architetti associati
- Team di progetto:
- Paolo Posarelli, Gianni Bellucci, Stefania Catastini, Massimiliano Settimelli, Alberto Canzoniero, Elena D'Andrea, Cristina Toni, Matteo Gallerini
- Strutture:
- Studio Tecno srl
- Impianti:
- Massimiliano Valeri, Claudio Magni
- Paesaggio:
- Andrea Pozzuoli
- Costruzione:
- Carmine Pagano srl
- Superficie:
- 2.530 mq
- Completamento:
- 2016
