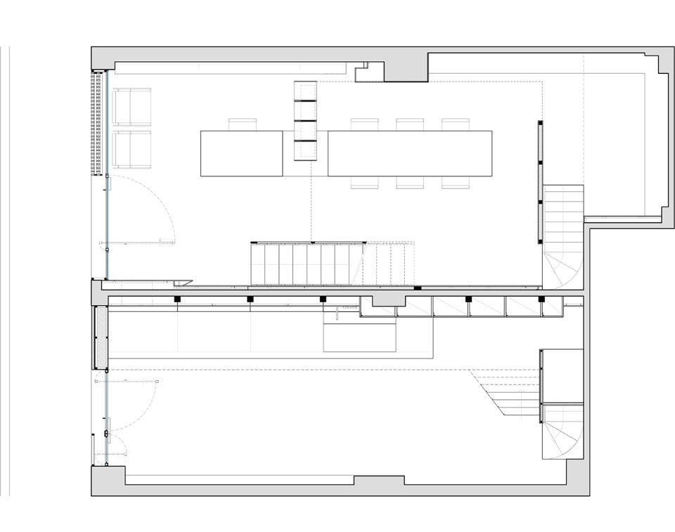
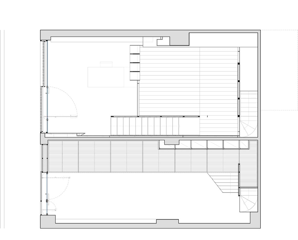
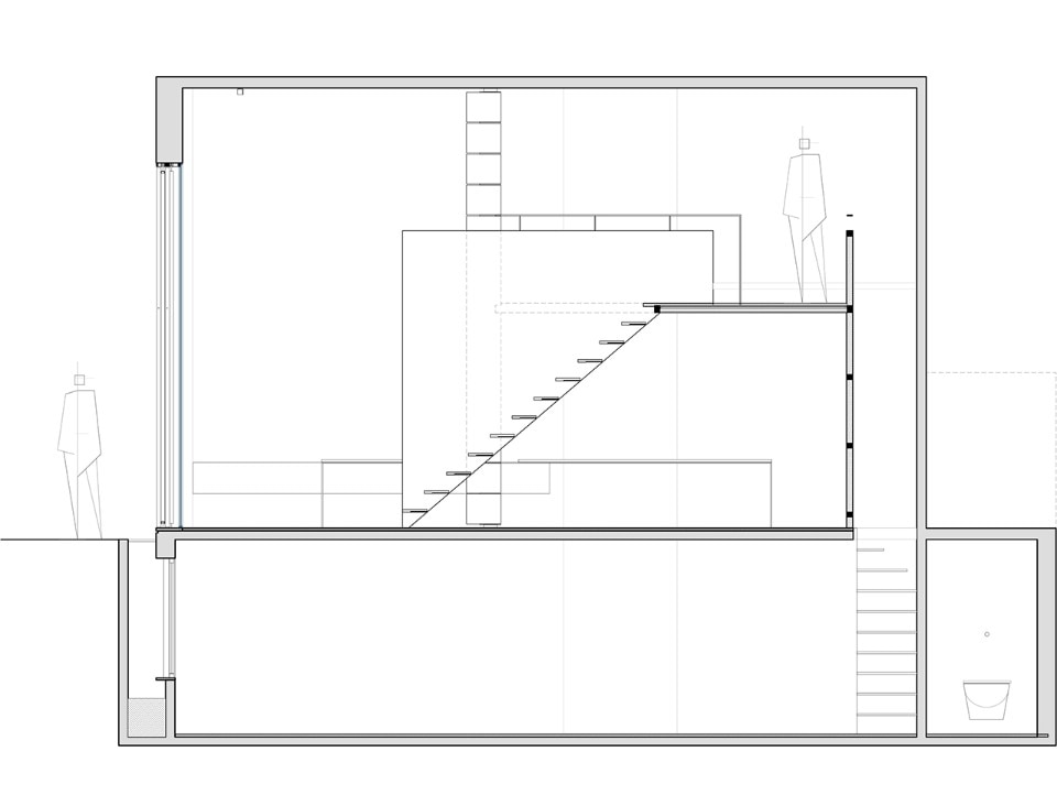
Due negozi adiacenti ma separati, situati al piano terra di un edificio storico ad Atene, sono il soggetto dell’intervento architettonico dell’architetto Agis Mourelatos, che li ha trasformati in un ufficio legale e in uno studio d’arte. La caratteristica principale del doppio intervento sull’interno e sulla facciata è la creazione di due sistemi modulari di piccole dimensioni, indipendenti dal sistema strutturale esistente. L’obiettivo di questa scelta è ridefinire l’abitabilità degli spazi in un ambiente urbano denso, evidenziando la relazione dialettica tra l’intervento e la preesistenza.
Galleria
Nello specifico, l’ufficio legale è una costruzione composita di legno e metallo che organizza le aree di lavoro e di accoglienza in modo lineare. La struttura rivela la grande altezza dell’interno esistente. Sia la gestione della facciata sia gli elementi che organizzano l’interno indagano il senso di privacy attraverso l’idea di trasparenza. Il secondo ambiente, lo studio d’arte, è caratterizzato da una costruzione leggera di acciaio che, partendo dalla facciata, si sviluppa attraverso lo spazio e mette in risultato la struttura lineare esistente. L’innesto serve a organizzare le varie funzioni dello spazio e gli elemento che lo compogono – panchina, scala e balcone – delineano le condizioni d’uso.
- Progetto:
- Pratinou 51
- Luogo:
- Atene
- Tipologia:
- ufficio
- Architetto:
- Agis Mourelotos
- Collaboratori:
- Dionisios Koumouras, Demetra Pavlakou
- Completion:
- 2017
